Chain-free, low-maintenance flat near Bracknell town centre and transport links.
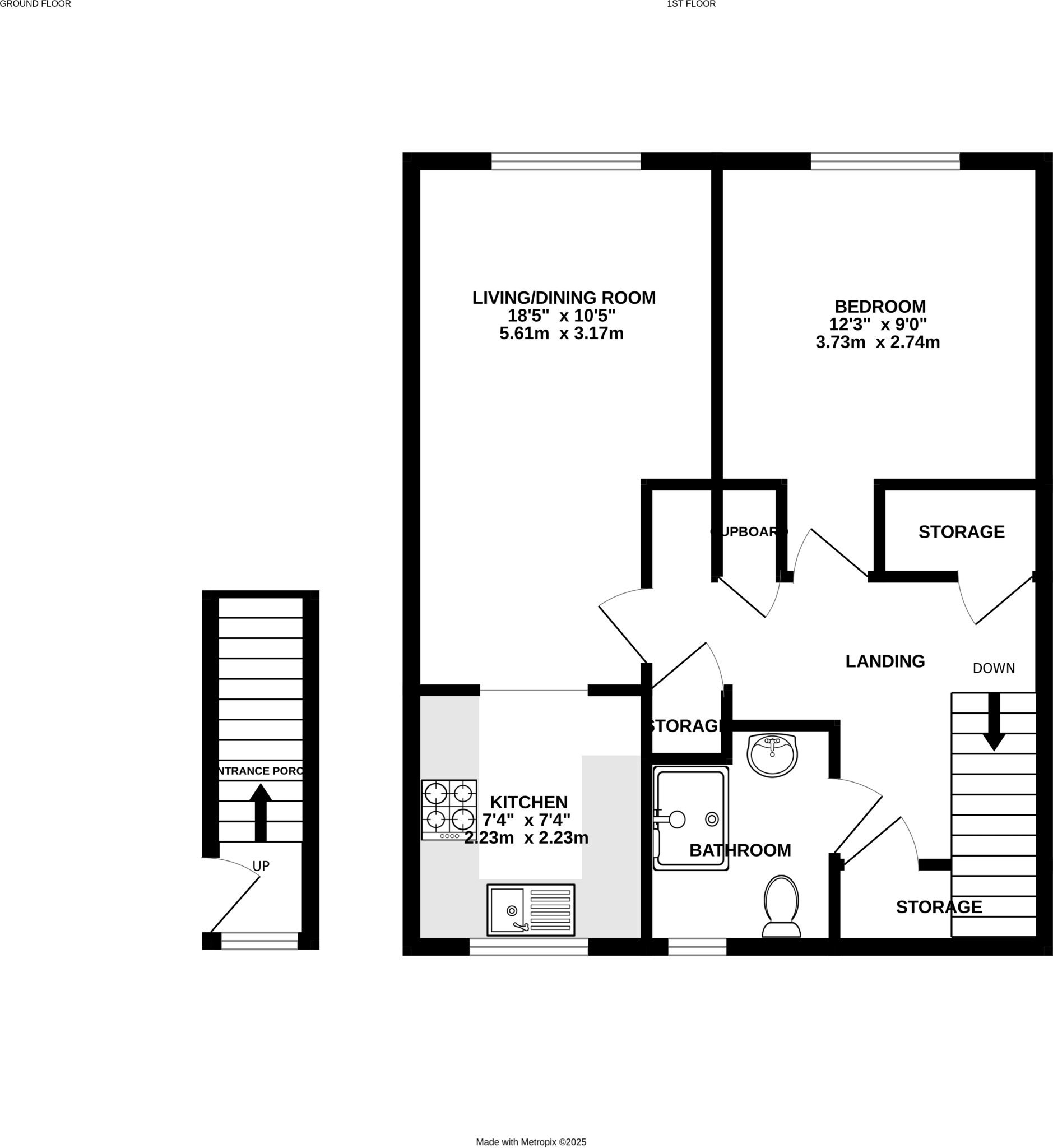
Chain free one-bedroom maisonette, c. 527 sq ft
Approximately 104 years remaining on lease (leasehold)
Modest service charge c. £450 per year and ground rent ~£20 pcm
Allocated off-street parking and communal gardens
Generous living/dining room; compact double bedroom
Double glazing and mains gas boiler with radiators
Cavity wall construction assumed without insulation—possible upgrade needed
Suitable for first-time buyers or buy-to-let investors; small internal size
A tidy one-bedroom maisonette in Priestwood, offered chain-free and ready to move into. The living/dining room is generously proportioned for the size, and the compact modern kitchen and bathroom are neutrally finished. The property benefits from plenty of built-in storage, double glazing and mains gas central heating.
Outside there is an allocated off-street parking space, communal gardens and a small paved frontage/patio. Located close to Bracknell town centre, local shops and transport links, the flat suits first-time buyers, commuters or buy-to-let investors seeking low-maintenance accommodation in an established suburb.
Practical points to note: the home is leasehold (about 104 years remaining) with a modest service charge (c. £450 pa) and a ground rent of around £20 pcm. The building dates from c. 1950–66 and walls are assumed to be uninsulated cavity construction, which may mean improvement work to insulation could be worthwhile in future. Internal space is compact at c. 527 sq ft, so this is best for single occupants or couples rather than those needing generous storage or multiple bedrooms.
Overall this maisonette offers straightforward, affordable access to Bracknell with low running costs (EPC C, council tax Band B) and good local amenities and schools close by. It represents a practical purchase for first-time buyers or investors looking for a central suburban rental opportunity.
1 bedroom maisonette for sale in Inchwood, Bracknell, Berkshire, RG12 — £200,000 • 1 bed • 1 bath • 527 ft²
1 bedroom maisonette for sale in Portia Grove, Warfield, Bracknell, RG42 — £220,000 • 1 bed • 1 bath • 516 ft²
1 bedroom maisonette for sale in Rectory Close, Bracknell, RG12 — £200,000 • 1 bed • 1 bath • 506 ft²
1 bedroom flat for sale in Cherbury Close, Bracknell, RG12 — £160,000 • 1 bed • 1 bath • 549 ft²
1 bedroom maisonette for sale in Juniper, Bracknell, Berkshire, RG12 — £240,000 • 1 bed • 1 bath • 484 ft²
1 bedroom end of terrace house for sale in Aldworth Close, Bracknell, Berkshire, RG12 — £200,000 • 1 bed • 1 bath


























