Compact, low-maintenance flat ideal for first-time buyers or buy-to-let investors.
Private ground-floor entrance and allocated off-street parking
Quiet cul-de-sac location with practical local transport links makes this one-bedroom ground-floor maisonette a sensible first home or easy-to-manage rental. The property has its own private entrance, allocated off-street parking and communal lawned grounds, creating a low-maintenance setting close to Bracknell town centre and the mainline station.
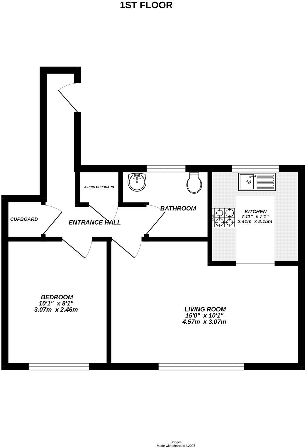
Internally the layout is compact and straightforward: entrance hall, living room, fitted kitchen, double bedroom and bathroom. Room sizes are average for a one-bedroom maisonette and finishes are functional rather than high-end, so immediate move-in is realistic for many buyers or tenants.
Leasehold details are favourable — an unusually long 957-year lease — and the EPC C (72) suggests reasonable energy performance. Annual service charges are modest at £859; ground rent is unspecified and should be confirmed prior to exchange.
Consider this if you want a practical, low-upkeep home near transport and amenities or an uncomplicated buy-to-let. Be aware the accommodation footprint is small, outlook is over communal grounds rather than private gardens, and interior finishes may suit those not seeking premium specification.
1 bedroom maisonette for sale in Portia Grove, Warfield, Bracknell, RG42 — £220,000 • 1 bed • 1 bath • 516 ft²
1 bedroom maisonette for sale in Dolphin Court, Lime Walk, Bracknell, Bracknell Forest, RG12 — £215,000 • 1 bed • 1 bath • 362 ft²
1 bedroom maisonette for sale in Liscombe, Bracknell, Berkshire, RG12 — £175,000 • 1 bed • 1 bath • 516 ft²
1 bedroom maisonette for sale in Rectory Close, Bracknell, RG12 — £200,000 • 1 bed • 1 bath • 506 ft²
1 bedroom apartment for sale in Northcott, Bracknell, Berkshire, RG12 — £200,000 • 1 bed • 1 bath • 578 ft²
1 bedroom maisonette for sale in Juniper, Bracknell, Berkshire, RG12 — £240,000 • 1 bed • 1 bath • 484 ft²






























