DH9 9UY - 3 bedroom mews property for sale in Tanfield, Stanley, Durh…

View on Property Piper

3 bedroom mews property for sale in Tanfield, Stanley, Durham, DH9 9UY , DH9

Summary - Tanfield, Stanley, Durham, DH9 9UY DH9 9UY

3 bed 1 bath Mews

New-build three-bed mews with NHBC warranty and garden, ideal for first-time buyers..
Three bedrooms with principal en-suite and family bathroom
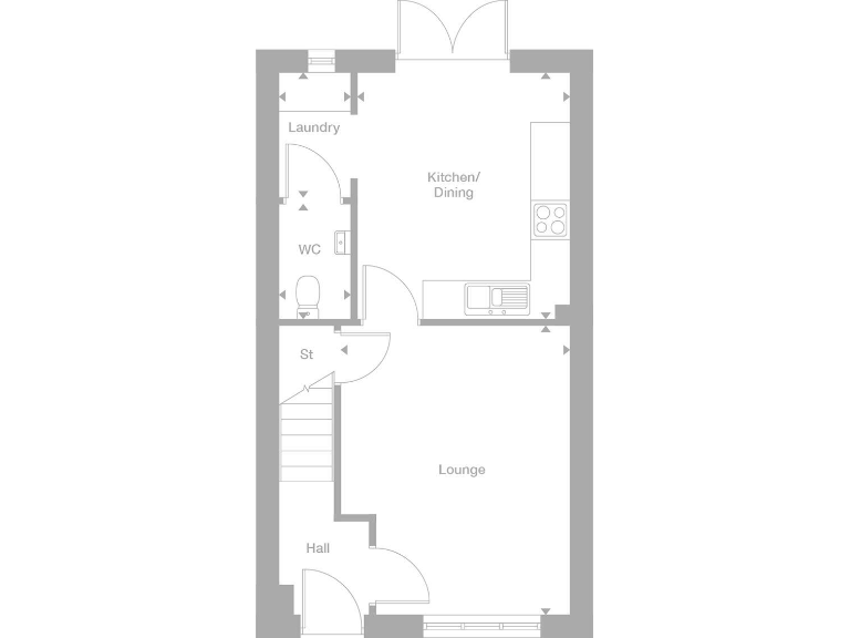
French doors from kitchen/diner to private garden
Separate laundry room and downstairs WC for practical living
New-build with 10-year NHBC warranty included
Off-street parking; freehold tenure (plot 109)
Overall internal size small — about 558 sq ft
Local crime level above average; consider security measures
Annual service charge £131; council tax band TBC
This three-bedroom mews home in Tanfield offers a compact, modern layout ideal for first-time buyers or small families. The open kitchen/diner with French doors brings natural light and direct garden access, while an en-suite principal bedroom and separate laundry room add everyday convenience. The property is new-build and comes with a 10-year NHBC warranty for added peace of mind.

Practical features include off-street parking, a downstairs WC and a modest service charge of £131 per year. At around 558 sq ft the home is small but thoughtfully arranged across two levels, with room measurements provided to help plan furniture and storage. Online pre-reservation is available, simplifying the buying process.

Be aware of material points: the property’s overall size is limited, which may restrict larger-family living or extensive storage needs. Local crime is reported above average and council tax band is yet to be confirmed. The development setting appears well kept, but buyers seeking more space or quieter streetscapes should factor these points into their decision.

Property Details

Brochure Descriptions

Image Descriptions

Floorplan Description

Rooms

Textual Property Features

Target Audience

AI Tags

Detected Visual Features

Nearby Schools

Nearest Bars And Restaurants

,,,,}

Nearest General Shops

,,}

Nearest Grocery shops

,,}

Nearest Supermarkets

,,}

Nearest Religious buildings

,,}

Nearest Medical buildings

,,,}

Nearest Airports

,}

Nearest Leisure Facilities

,,,,}

Nearest Tourist attractions

,,}

Nearest Train stations

,,,,}

Nearest Bus stations and stops

,,,,}

Nearest Hotels

,,}

Tags

Local Market Stats

Similar Properties

Meta

High Res Images

Compatible Images

Low res Images

Thumbnails

Raw Images

High Res Floorplan Images

Compatible Floorplan Images

Low res Floorplan Images

FloorplanImages Thumbnail

Raw Floorplan Images