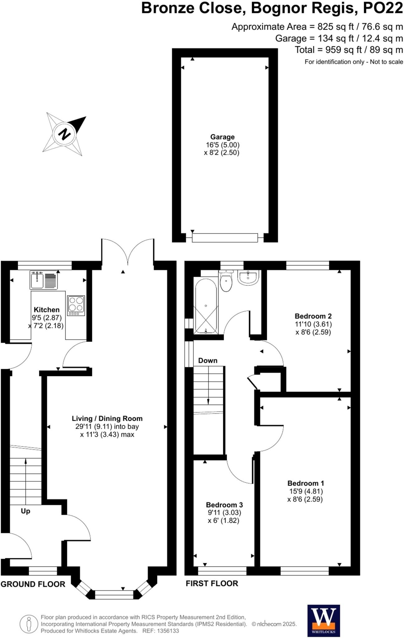
Well-presented three-bed semi on a corner plot — ideal for first-time buyers or investors..
- Three bedrooms, two doubles and one single
- Spacious living/dining room with garden patio doors
- Modern fitted kitchen with garden access
- Garage located in cul-de-sac compound (off-plot)
- Corner plot with side and rear mainly lawned gardens
- Single family bathroom only
- Freehold, EPC rating C, mains gas boiler
- Local area records higher-than-average crime rates
Set on a generous corner plot in a quiet cul-de-sac, this three-bedroom semi-detached house offers practical family accommodation over approximately 825 sq ft. The ground floor features a spacious living/dining room with patio doors to the rear garden and a modern fitted kitchen with direct garden access, creating an easy indoor-outdoor flow. The property is freehold, has double glazing and a mains gas boiler serving radiators. EPC rated C.
Upstairs are two double bedrooms, a well-proportioned single and a family bathroom. The plot is mainly lawned to the side and rear and has gated access to the front. Parking is via a garage situated in a compound within the cul-de-sac rather than an integral driveway.
This home will suit first-time buyers or investors and is presented as ready to live in; it sits in a comfortable suburbia area with fast broadband and excellent mobile signal. Notable local amenities include schools with several rated Good, leisure facilities and good transport links to Bognor Regis.
Important practical points: the plot is relatively small for a corner site, there is only one family bathroom, and the garage is off-plot in a shared compound. The area records higher crime levels than average, which some buyers will want to consider alongside the property’s other strengths.
3 bedroom semi-detached house for sale in Addison Way, North Bersted, PO22 — £345,000 • 3 bed • 1 bath • 977 ft²
3 bedroom semi-detached house for sale in Stoneage Close, Bognor Regis, PO22 — £290,000 • 3 bed • 1 bath • 778 ft²
3 bedroom semi-detached house for sale in Stoneage Close, Bognor Regis, West Sussex, PO22 — £299,950 • 3 bed • 1 bath • 748 ft²
2 bedroom end of terrace house for sale in Stoneage Close, Bognor Regis, West Sussex, PO22 — £255,000 • 2 bed • 1 bath • 683 ft²
3 bedroom semi-detached house for sale in Stoneage Close, Bognor Regis, PO22 — £255,000 • 3 bed • 1 bath • 882 ft²
3 bedroom semi-detached house for sale in Moorhen Way, North Bersted, Bognor Regis, West Sussex, PO22 9DA, PO22 — £294,000 • 3 bed • 1 bath • 752 ft²














































