Renovated three-bed apartment near Holland Park and top schools.
Three double bedrooms, large master with en suite and fitted wardrobes
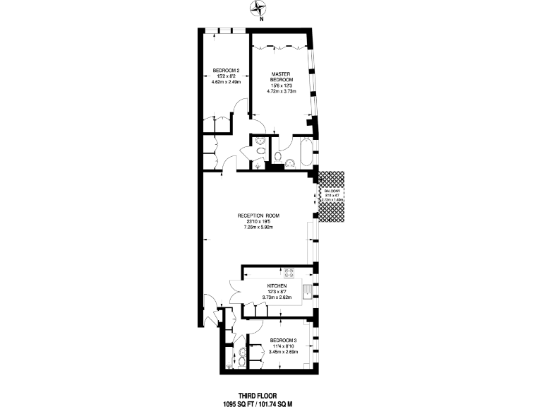
Approximately 1,095 sq ft of bright, newly renovated living space
Semi-open plan reception, separate dining space and private balcony
Contemporary fitted kitchen with integrated Samsung appliances
Lift access, porter service, double glazing and fast broadband
Leasehold with 124 years remaining — check service charges
Electric room heaters (no communal gas) — consider running costs
Area crime above average; buyers may wish to review local security
Set on sought-after Strangways Terrace, this newly renovated three-bedroom flat offers spacious, light-filled rooms across approximately 1,095 sq ft. The semi-open plan reception creates an easy flow for family living and entertaining, while a sleek contemporary kitchen with integrated Samsung appliances and a private balcony add everyday comfort. Large master bedroom with fitted wardrobes and en suite, plus two further shower rooms, suit busy households or guests.
Practical features include double glazing, lift access and porter service, long lease (124 years remaining), and fast broadband with excellent mobile signal — useful for home working and streaming. The location places High Street Kensington and Kensington Olympia amenities close by, with Holland Park’s green space within easy reach. Several highly rated primary and secondary schools are nearby, making the flat well placed for families.
Buyers should note the property uses electric room heaters rather than a communal gas system and was constructed in the 1950s–60s with system-built walls (no known insulation). Crime levels in the immediate area are above average; buyers may wish to consider security measures. The tenure is leasehold; purchasers should be aware of long-term ownership implications and any service charges.
Overall this apartment will suit families or professionals seeking a ready-to-move-in central Kensington home with contemporary finishes, good transport links and strong local schools, while accepting the constraints of electric heating and the leasehold tenure.
3 bedroom flat for sale in St Mary's Gate, High Street Kensington, London, W8 — £2,100,000 • 3 bed • 3 bath • 1155 ft²
3 bedroom flat for sale in Sovereign Court, Kensington, London, W8 — £2,500,000 • 3 bed • 2 bath • 1378 ft²
2 bedroom flat for sale in Lexham Gardens, Kensington, London, W8 — £1,150,000 • 2 bed • 2 bath • 872 ft²
4 bedroom flat for sale in Warwick Gardens, High Street Kensington, London, W14 — £2,650,000 • 4 bed • 3 bath • 2555 ft²
3 bedroom flat for sale in Holland Road, London, W14 — £825,000 • 3 bed • 2 bath • 994 ft²
3 bedroom apartment for sale in St Mary Abbots Court, London, W14 — £1,750,000 • 3 bed • 3 bath














































































