**Standout Features:**
- Grade II listed, detached period cottage
- Charming exposed timbers and inglenook fireplace
- Heated swimming pool with terrace for entertaining
- Bright kitchen/breakfast room with modern appliances
- Private south-facing rear garden
- Off-street parking and single garage
- Located in a peaceful hamlet with low crime and high-quality local schools
**Potential Downsides:**
- Limited ability to renovate or extend due to listed status
- Cottage size may be considered modest for some buyers
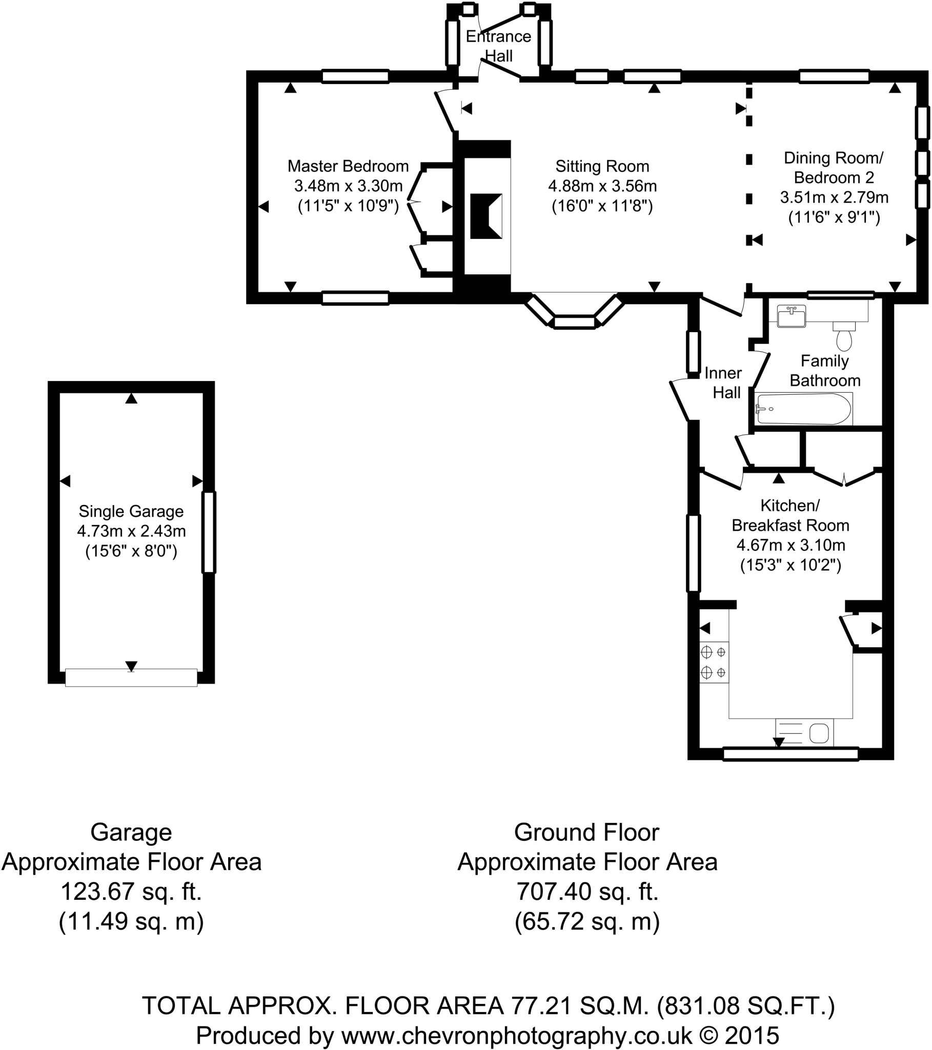
This delightful Grade II listed cottage in Higham, Colchester, presents a unique blend of historical charm and modern amenities. Featuring a stunning vaulted ceiling in the master bedroom and a cozy sitting room with a welcoming inglenook fireplace, the property captures the essence of countryside living. The bright kitchen/breakfast room offers space for family dining and is equipped with contemporary appliances.
Step outside to discover the expansive private garden, perfect for leisurely afternoons, and unwind by the enticing heated swimming pool set amidst well-maintained grounds. With off-street parking and a single garage, this home boasts practical features alongside its charm.
Set within a tranquil hamlet known for its low crime rates and access to reputable schools, this cottage could be an excellent opportunity for first-time buyers or families seeking a peaceful environment. While the property's listed status may pose some limitations on renovation and extension, its unique character and idyllic setting are compelling advantages that make this cottage a captivating retreat. Don't miss the chance to embrace a serene lifestyle - properties like this are rare to find!
3 bedroom cottage for sale in 1 Polstead Hill, Polstead, Suffolk, CO6 — £535,000 • 3 bed • 1 bath • 1159 ft²
4 bedroom detached house for sale in Dedham Road, Stratford St. Mary, Colchester, Suffolk, CO7 — £600,000 • 4 bed • 1 bath
3 bedroom house for sale in High Street, Dedham, Colchester, Essex, CO7 — £875,000 • 3 bed • 1 bath • 1582 ft²
4 bedroom semi-detached house for sale in Great Waldingfield, Sudbury, Suffolk, CO10 — £325,000 • 4 bed • 2 bath • 1203 ft²
4 bedroom detached house for sale in London Road, Little Clacton, CO16 — £750,000 • 4 bed • 5 bath • 2243 ft²
3 bedroom detached house for sale in Great Waldingfield, Sudbury, Suffolk, CO10 — £550,000 • 3 bed • 1 bath






















































