**Standout Features:**
- Grade II* listed Victorian cottage with rich historical significance.
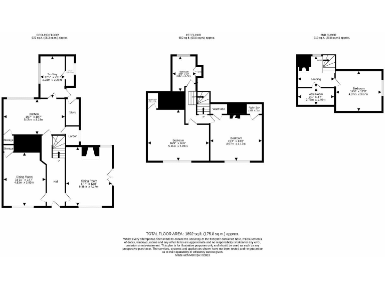
- Spacious living with two reception rooms, a kitchen, scullery, and three bedrooms.
- Beautiful gardens featuring a charming rambling brook, perfect for family enjoyment.
- Recently granted planning permission for ground floor alterations and extension.
- Detached garage for convenient parking and storage.
**Concise Summary:**
Discover the allure of this exceptional Grade II* listed Victorian cottage nestled in a picturesque English village. With origins believed to date back to the late medieval period, this home boasts character and history, making it a unique find for buyers who appreciate heritage. Inside, you'll find generously sized reception rooms, including a sitting room with a triple aspect and an open fireplace, plus a formal dining room that could double as a library.
The kitchen, replete with an AGA, adjoins a functional scullery, making it perfect for family gatherings. The cottage comprises three bedrooms, each exuding charm and elegance, and features a newly approved planning permission for future ground-floor alterations, offering excellent renovation potential. The extensive gardens, with their delightful brook and a mixture of landscaping styles, enhance outdoor living, providing ample space for recreation, relaxation, and family fun.
While the property retains its structural integrity, prospective buyers should be mindful of its listed status, which may impose certain restrictions for renovations. This idyllic setting combines modern comforts with countryside charm, making it an attractive option for families or retirees seeking a peaceful retreat. Don’t miss your chance to own a piece of history and create your own stories in this enchanting cottage!
3 bedroom detached house for sale in Harts Lane, Ardleigh, Colchester, Essex, CO7 — £675,000 • 3 bed • 2 bath • 4005 ft²
4 bedroom cottage for sale in Bear Street, Nayland, Suffolk, CO6 — £420,000 • 4 bed • 2 bath • 1200 ft²
4 bedroom terraced house for sale in High Street, Kelvedon, CO5 — £500,000 • 4 bed • 2 bath
4 bedroom end of terrace house for sale in Birch Street, Nayland, Colchester, Suffolk, CO6 — £600,000 • 4 bed • 2 bath • 1770 ft²
4 bedroom detached house for sale in Princel Lane, Dedham, Colchester, Essex, CO7 — £1,375,000 • 4 bed • 2 bath • 2773 ft²
4 bedroom semi-detached house for sale in Crown Street, Dedham, Colchester, Essex, CO7 — £795,000 • 4 bed • 2 bath • 1636 ft²


























































































