Modern new build with open-plan living and strong local schools nearby.
Four bedrooms including main with en suite and one single/home office
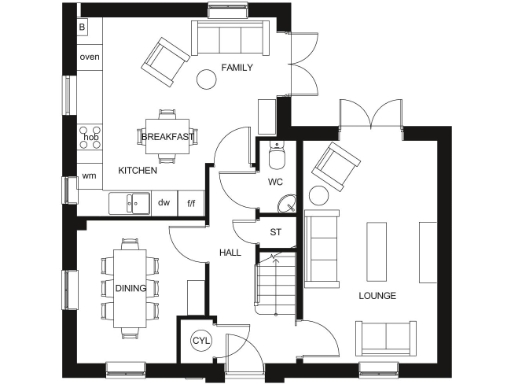
This newly built four-bedroom detached home in Fernwood Village is aimed at families seeking modern living with easy commuter access. The ground floor offers a large open-plan kitchen with French doors to the garden, a separate dining room and a bright dual-aspect lounge — layouts that suit everyday family life and entertaining. A single bedroom can work well as a home office or child’s room, while the main bedroom benefits from an en suite.
Practical advantages include a detached garage and private driveway parking for two cars, low local crime, fast broadband and excellent mobile signal. The development sits close to countryside and is around ten minutes from Newark, with good links to the A1/A46 and several highly rated schools nearby — useful for school runs and commuting.
Be clear about limitations: the overall internal area is relatively small (about 948 sq ft) for a four-bedroom house, and there is just one family bathroom upstairs in addition to the en suite. The rear garden and plot sizes are modest, so outdoor space is limited compared with larger family plots. Tenure is not specified in the details provided.
There are incentives to help buyers: a 5% deposit contribution (worth £18,149) or access to a Key Worker deposit scheme — helpful for first-time buyers or key workers needing deposit support. Viewings of the show home are available to assess finish and layout in person.
4 bedroom detached house for sale in Phoenix Lane,
Fernwood,
Newark,
NG24 3UA, NG24 — £357,995 • 4 bed • 1 bath • 948 ft²
4 bedroom detached house for sale in Phoenix Lane,
Fernwood,
Newark,
NG24 3UA, NG24 — £349,995 • 4 bed • 1 bath • 1132 ft²
4 bedroom detached house for sale in Phoenix Lane,
Fernwood,
Newark,
NG24 3UA, NG24 — £279,995 • 4 bed • 1 bath • 847 ft²
4 bedroom detached house for sale in Phoenix Lane,
Fernwood,
Newark,
NG24 3UA, NG24 — £289,995 • 4 bed • 1 bath • 847 ft²
4 bedroom detached house for sale in Phoenix Lane,
Fernwood,
Newark,
NG24 3UA, NG24 — £334,995 • 4 bed • 1 bath • 970 ft²
4 bedroom detached house for sale in Phoenix Lane,
Fernwood,
Newark,
NG24 3UA, NG24 — £299,995 • 4 bed • 1 bath • 847 ft²










































































































































