Move-in ready family home with integrated upgrades and generous parking.
5% deposit boost worth £13,999 included in deal value
Upgraded kitchen and flooring included; move-in ready package £22,558 total
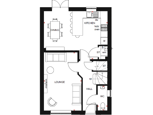
Open-plan kitchen/dining with island and French doors to garden
Detached garage plus private driveway parking for two cars
En suite to main bedroom; second double plus two single bedrooms
Relatively small internal area ~847 sq ft; compact room sizes
Only one family bathroom (plus en suite) may suit smaller families
Tenure not specified; verify before exchange
This four-bedroom detached new-build offers contemporary family living on the edge of Fernwood, ten minutes from Newark. The show-piece is an open-plan kitchen/dining room with French doors to the garden, complemented by a bright lounge and handy cloakroom. The home comes with a detached garage and private driveway parking for two cars.
Upstairs provides an en suite main bedroom, a second double and two single bedrooms alongside a family bathroom. The specification includes an upgraded kitchen package and flooring throughout as part of a move-in ready deal worth £22,558, reducing initial fit-out costs. Low local crime, good broadband and excellent mobile signal add practical benefits for modern family life.
Notable limitations are the overall internal floor area (approximately 847 sq ft) and a single family bathroom plus one en suite, which may feel tight for larger households. Tenure details are not provided. The setting benefits from nearby Outstanding-rated primary schooling, countryside surroundings and quick access to the A1/A46, suiting buyers seeking a low-maintenance new home within commuting distance of Newark.
4 bedroom detached house for sale in Phoenix Lane,
Fernwood,
Newark,
NG24 3UA, NG24 — £289,995 • 4 bed • 1 bath • 847 ft²
4 bedroom detached house for sale in Phoenix Lane,
Fernwood,
Newark,
NG24 3UA, NG24 — £299,995 • 4 bed • 1 bath • 847 ft²
4 bedroom detached house for sale in Phoenix Lane,
Fernwood,
Newark,
NG24 3UA, NG24 — £349,995 • 4 bed • 1 bath • 1132 ft²
4 bedroom detached house for sale in Phoenix Lane,
Fernwood,
Newark,
NG24 3UA, NG24 — £334,995 • 4 bed • 1 bath • 970 ft²
4 bedroom detached house for sale in Phoenix Lane,
Fernwood,
Newark,
NG24 3UA, NG24 — £299,995 • 4 bed • 1 bath • 847 ft²
3 bedroom semi-detached house for sale in Phoenix Lane,
Fernwood,
Newark,
NG24 3UA, NG24 — £239,995 • 3 bed • 1 bath • 654 ft²


































































