Large garden, open-plan living and garage close to shops and riverside.
Full-width open-plan kitchen/family room with garden access
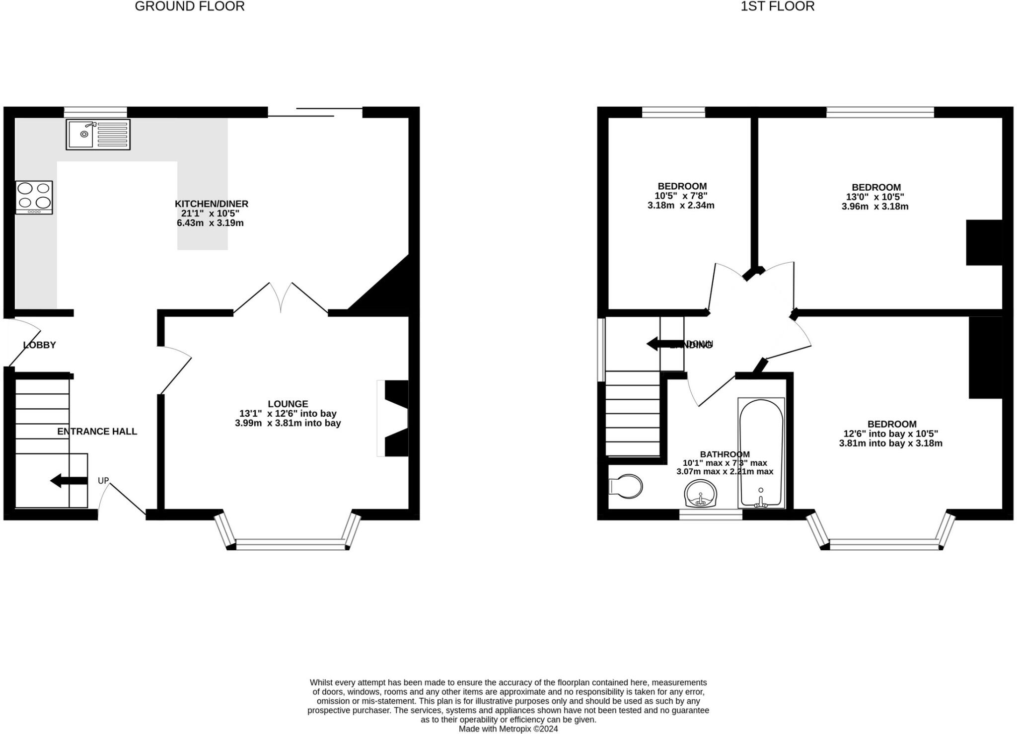
A thoughtfully updated 1930s semi offering bright, family-focused living in Shirehampton. The ground floor opens into a full-width kitchen/family room with patio doors onto a large, well-zoned garden — ideal for children and outdoor entertaining. A separate cosy lounge with double doors gives flexibility for quiet evenings or expanded open-plan space when needed.
Practical improvements include a new kitchen, new front and patio doors, an electric garage door, and a recently serviced boiler (late 2024). Solar panels reduce energy bills and can export surplus electricity. Driveway parking and a garage add valuable storage and off-road convenience.
Upstairs are three good-sized bedrooms and one family bathroom; the front bedroom enjoys views over Daisy Fields toward the River Avon. There is scope on the ground floor to add a WC if required. The house is chain free and offered freehold, making for a straightforward purchase for moving families.
Location is a strong selling point: under a ten-minute walk to the High Street and Riverside walks, with direct rail links to Temple Meads, regular Park & Ride buses, and quick motorway access. Local schools are well-rated, and the area combines good transport with an affluent neighbourhood profile.
3 bedroom semi-detached house for sale in Coaley Road, Shirehampton, Bristol, BS11 — £375,000 • 3 bed • 1 bath • 936 ft²
3 bedroom semi-detached house for sale in Grove Leaze, Shirehampton, Bristol, BS11 — £350,000 • 3 bed • 1 bath • 678 ft²
3 bedroom semi-detached house for sale in Portway, Shirehampton, Bristol, BS11 — £357,500 • 3 bed • 1 bath • 926 ft²
3 bedroom semi-detached house for sale in Portway, Shirehampton, BS11 — £315,000 • 3 bed • 1 bath • 1122 ft²
3 bedroom house for sale in Grove Leaze, Shirehampton, Bristol, BS11 — £325,000 • 3 bed • 2 bath • 881 ft²
3 bedroom house for sale in Springfield Avenue, Shirehampton, Bristol, BS11 — £275,000 • 3 bed • 2 bath • 868 ft²


























































































