Low-running, warranty-backed new build ideal for first-time buyers and investors.
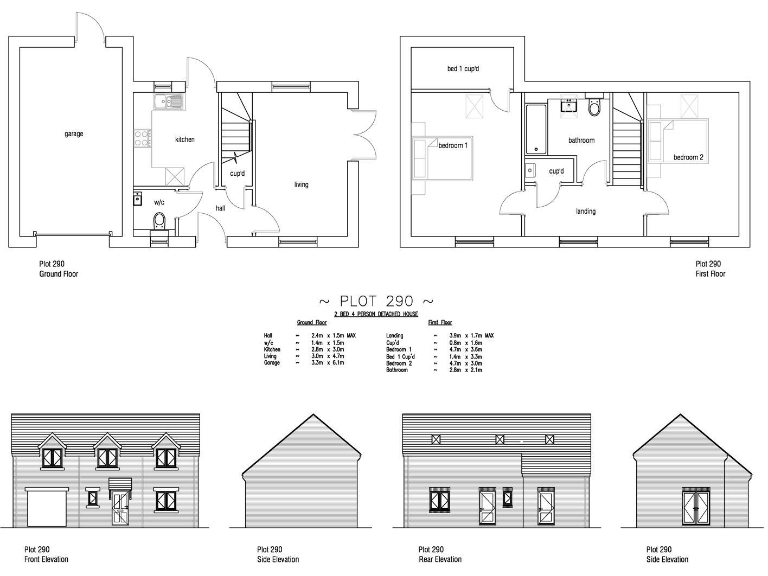
New-build two-bedroom detached house with A-rated energy performance
Integral garage plus one parking space; patio and enclosed rear garden
Contemporary Howdens kitchen with AEG induction hob and integrated dishwasher
LVT flooring to ground floor, UPVC double glazing, gas central heating
Photo-voltaic panels on the roof reduce energy bills; 10-year NHBC warranty
Small plot and modest garden; not suited for buyers needing large outdoor space
Site service charge £295 per annum; council tax banding to be confirmed
Property due for occupation December 2025; some external finishes unfinished
A newly built two-bedroom detached house on Plot 290, Curtis Fields, designed for low running costs with an A-rated energy performance and rooftop photovoltaic panels. The ground floor features a lounge with French doors to a full-width patio and enclosed rear garden, plus a contemporary Howdens kitchen fitted with AEG appliances and an integral garage with an additional parking space. Finished ground-floor LVT flooring, UPVC double glazing and gas central heating are included. A 10-year NHBC warranty comes with the home.
The layout suits first-time buyers or couples looking to move into a modern, low-maintenance home: two double bedrooms upstairs, a family bathroom and a large built-in eaves cupboard in Bedroom 1. The property is due for occupation in December 2025 and will be handed over largely complete, although some finishes and landscaping remain to be finished on site.
Practical points to note: there is an annual site service charge of £295, council tax banding is yet to be assessed, and available photos are limited as this is the first house of this type in the phase. The plot and front garden are relatively small, so buyers wanting larger outdoor space should consider this. Mobile signal and broadband prospects are good, and mains services are connected.
2 bedroom detached house for sale in Plot 295 Curtis Fields, 4 Blossom Grove, Weymouth, DT4 0FS, DT4 — £320,000 • 2 bed • 1 bath • 840 ft²
2 bedroom end of terrace house for sale in Plot 375 Curtis Fields, 17 Bramble Road, Weymouth DT4 0FT, DT4 — £287,500 • 2 bed • 1 bath • 667 ft²
2 bedroom terraced house for sale in Plot 372 Curtis Fields, 23 Bramble Road, Weymouth DT4 0FT, DT4 — £277,500 • 2 bed • 1 bath • 802 ft²
2 bedroom semi-detached house for sale in Plot 297 Curtis Fields, 81 Curtis Fields, Weymouth, DT4 0TS, DT4 — £295,000 • 2 bed • 1 bath • 856 ft²
3 bedroom detached house for sale in Plot 302 Curtis Fields, 6 Blossom Grove, Weymouth, DT4 0FS, DT4 — £382,500 • 3 bed • 2 bath • 1099 ft²
2 bedroom detached house for sale in Plot 301 Curtis Fields, 89 Curtis Way, Weymouth, DT4 0TS, DT4 — £320,000 • 2 bed • 1 bath • 840 ft²






































































