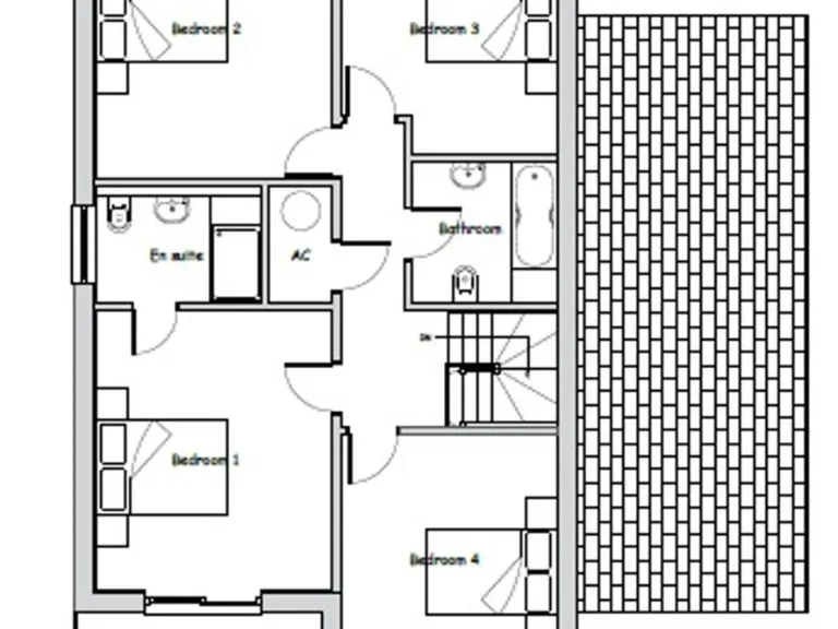
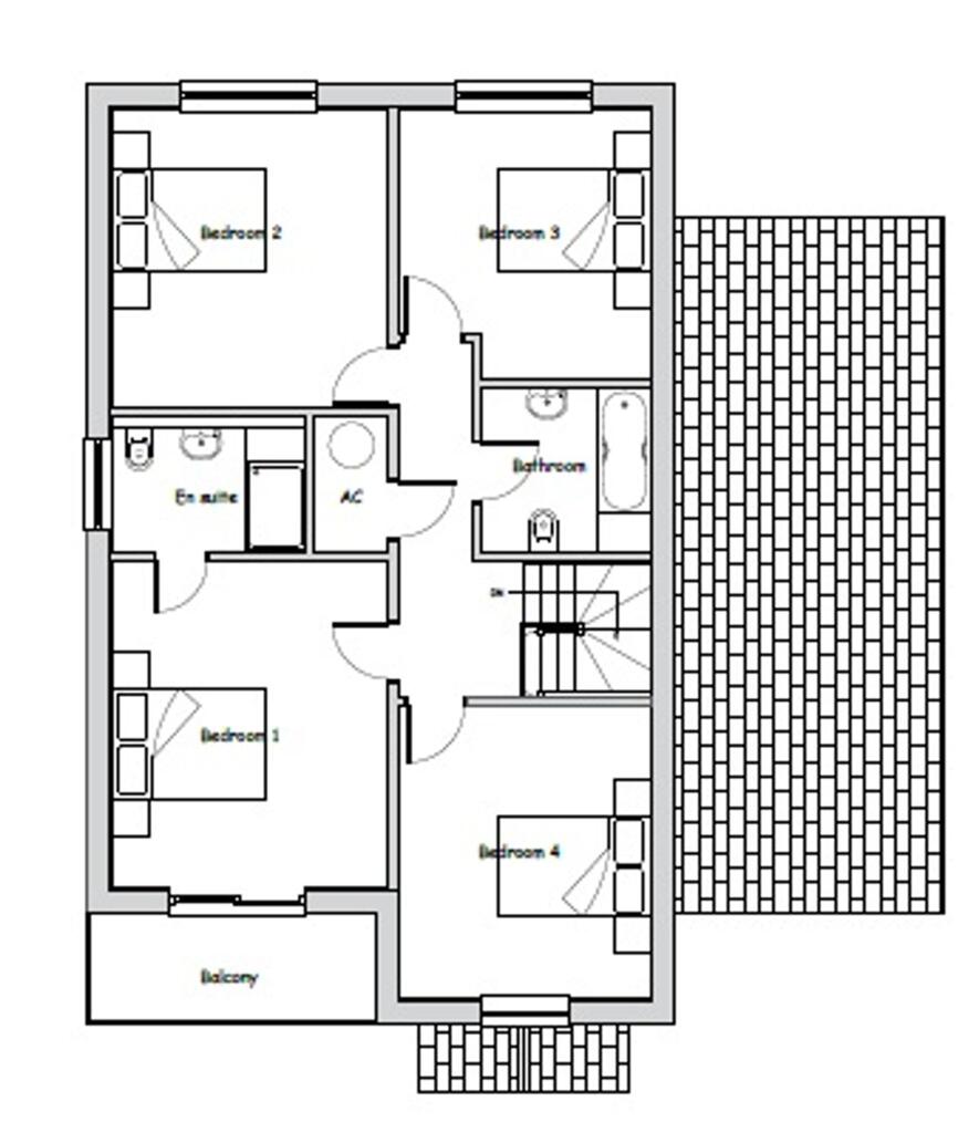
### Standout Features:
- Rare development opportunity on over 1.5 acres of land.
- Planning permission granted (PA23/08105) for three executive-style detached homes.
- Perfect location in a highly sought-after rural area, just a short drive to Newquay.
- No onward chain, offering a smooth purchasing process.
- Easy access site with nearby services and amenities.
- Off-street parking available.
### Summary:
Discover a prime development site nestled on the edge of the historic town of St Columb Major, offering an exceptional opportunity for investors or developers. Spanning over 1.5 acres, this land comes with approved planning permission for three executive-style homes, ensuring a solid foundation for your project. The site is conveniently located just a short drive from Newquay and within walking distance to the town’s amenities, promoting a vibrant community lifestyle.
This property’s potential is amplified by the option for additional development (subject to planning) on the vast remaining land, making it an enticing investment prospect in an area known for its low crime rate and strong community spirit. With no onward chain and easy access to essential services, this unique offering is not expected to linger long on the market. If you're seeking a worthwhile venture or a family-friendly environment to build upon, act quickly to explore the possibilities this site has to offer.
Land for sale in Union Hill, St. Columb, TR9 — £600,000 • 1 bed • 1 bath
Land for sale in Talskiddy, St. Columb, Cornwall, TR9 — £240,000 • 1 bed • 1 bath • 8712 ft²
Land for sale in Tregaswith Farmhouse, Tregaswith, Newquay, Cornwall, TR8 — £300,000 • 1 bed • 1 bath
Land for sale in Rosemundy, St. Agnes, Cornwall, TR5 0UD, TR5 — £1,200,000 • 1 bed • 1 bath
Land for sale in Rosemundy, St. Agnes, Cornwall, TR5 0UD, TR5 — £1,200,000 • 1 bed • 1 bath
Plot for sale in Trevarrick, Gorran, St. Austell, PL26 — £450,000 • 1 bed • 1 bath • 3000 ft²






































