Starter home with parking and low charges, close to amenities and rail links.
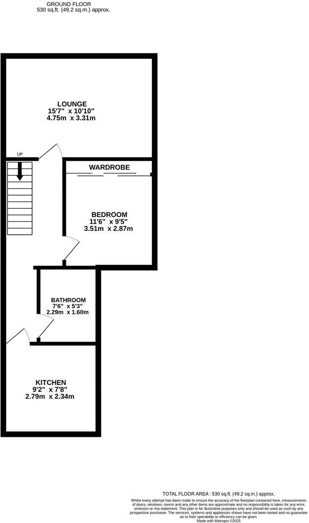
Around 530 sq ft one-bedroom apartment
A compact one-bedroom apartment offering an efficient layout and genuine local convenience. At about 530 sq ft this property suits a single buyer or couple seeking an affordable entry into Cottingham, with a fitted double wardrobe, a modern kitchen and a bright living room. The building’s Tudor-style exterior gives character while the apartment benefits from double glazing and gas central heating.
Practical features that stand out are the dedicated off-street parking space, a low service charge (£25), a very long lease (995 years) and low council tax. The location is quietly suburban with easy walking access to local shops, leisure facilities and Cottingham train station — good for commuting and day trips.
Note a couple of points to check in person: sources differ on whether the flat is ground or first floor, and outside space is communal block-paved courtyard rather than a private garden. The apartment is modest in size, so buyers wanting generous living space or private outdoor areas should consider this before viewing.
Built in the 1930s–1940s with solid brick walls and internal insulation, the property feels established rather than new-build. It’s well suited to first-time buyers or downsizers who prioritise location, low running costs and a straightforward maintenance profile over expansive accommodation.
 1 bedroom apartment for sale in St. Marys Mount, Cottingham, HU16 — £84,950 • 1 bed • 1 bath • 463 ft²
 1 bedroom apartment for sale in St. Marys Mount, Cottingham, HU16 — £84,950 • 1 bed • 1 bath • 463 ft² 1 bedroom apartment for sale in St. Marys Mount, Cottingham, HU16 — £82,500 • 1 bed • 1 bath • 496 ft²
 1 bedroom apartment for sale in St. Marys Mount, Cottingham, HU16 — £82,500 • 1 bed • 1 bath • 496 ft² 1 bedroom flat for sale in Muston Avenue, Cottingham, HU16 — £79,950 • 1 bed • 1 bath • 473 ft²
 1 bedroom flat for sale in Muston Avenue, Cottingham, HU16 — £79,950 • 1 bed • 1 bath • 473 ft² 2 bedroom flat for sale in Greendale Court, Cottingham, East Riding of Yorkshire, HU16 — £130,000 • 2 bed • 1 bath • 614 ft²
 2 bedroom flat for sale in Greendale Court, Cottingham, East Riding of Yorkshire, HU16 — £130,000 • 2 bed • 1 bath • 614 ft² 1 bedroom apartment for sale in Bowes Walk, Hull, HU5 4RP, HU5 — £64,950 • 1 bed • 1 bath
 1 bedroom apartment for sale in Bowes Walk, Hull, HU5 4RP, HU5 — £64,950 • 1 bed • 1 bath 1 bedroom retirement property for sale in Field Close,
Cottingham,
HU16 5GX
, HU16 — £179,950 • 1 bed • 1 bath • 519 ft²
 1 bedroom retirement property for sale in Field Close,
Cottingham,
HU16 5GX
, HU16 — £179,950 • 1 bed • 1 bath • 519 ft²














































