South-facing one-bed with level-access shower and on-site care facilities.
Over-70s Retirement Living PLUS with 24-hour CQC-registered staff
A purpose-built, modern one-bedroom apartment in a retirement development designed for the over-70s. Located on the third floor with a south-facing Juliet balcony, the living space is bright and benefits from views along a tree-lined garden boundary. The apartment includes a fitted mirrored wardrobe in the bedroom and a level-access shower with slip-resistant flooring and an illuminated mirror.
This Retirement Living PLUS scheme offers 24-hour on-site CQC-registered staffing, flexible care packages, a bistro-style restaurant serving daily meals, guest suite and parking, and an emergency call system — practical features for anyone seeking support and community. The development was constructed in 2019 and sits within well-kept communal landscaped grounds.
Be aware of some practical downsides: heating is by electric room heaters which can be more costly than gas central heating, broadband speeds are reported as very slow, and the local crime level is above average. The property is leasehold (long lease remaining: 996 years) and provides communal amenity rather than a private garden.
Overall this apartment will suit a buyer seeking low-maintenance, supported living with on-site care options and communal social facilities. It’s a comfortable, modern home with clear benefits for downsizers who prioritise safety, community and convenience, but those needing fast internet or lower running costs should note the heating and broadband limitations.
1 bedroom flat for sale in Springs Court, Field Close, Cottingham, East Riding of Yorkshire, HU16 — £170,000 • 1 bed • 1 bath • 592 ft²
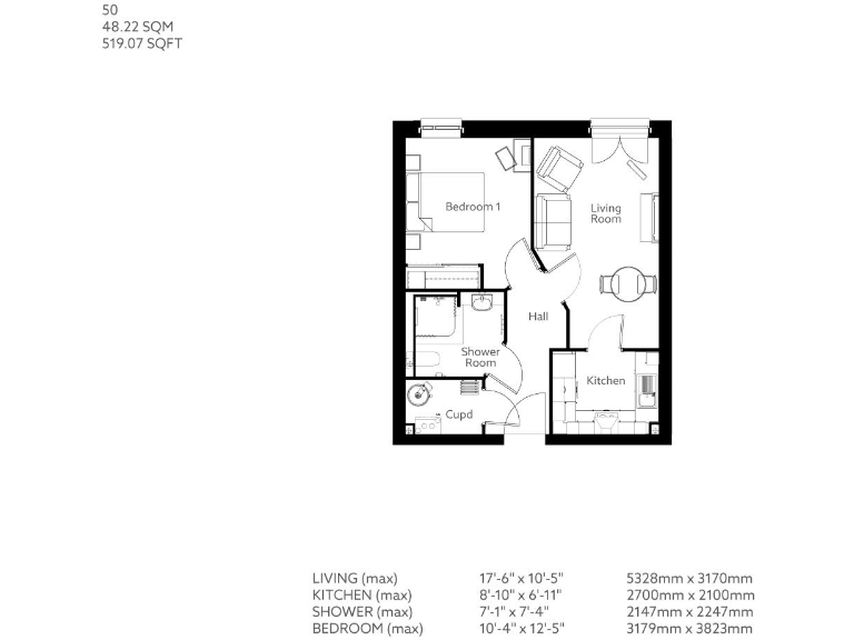
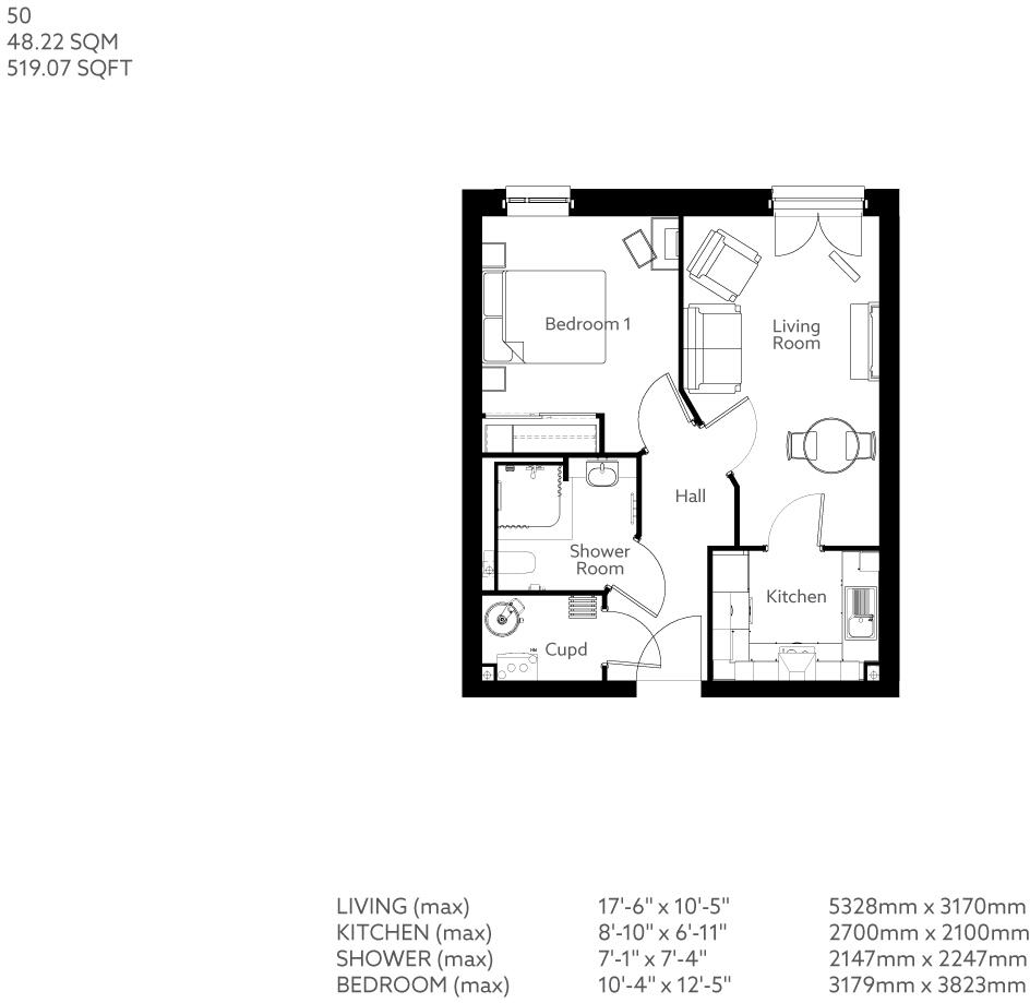
1 bedroom retirement property for sale in Field Close,
Cottingham,
HU16 5GX
, HU16 — £179,999 • 1 bed • 1 bath • 519 ft²
2 bedroom retirement property for sale in Field Close,
Cottingham,
HU16 5GX
, HU16 — £161,250 • 2 bed • 1 bath • 776 ft²
2 bedroom retirement property for sale in Field Close,
Cottingham,
HU16 5GX
, HU16 — £165,000 • 2 bed • 1 bath • 848 ft²
2 bedroom retirement property for sale in Field Close,
Cottingham,
HU16 5GX
, HU16 — £165,000 • 2 bed • 1 bath • 792 ft²
2 bedroom retirement property for sale in Field Close,
Cottingham,
HU16 5GX
, HU16 — £165,000 • 2 bed • 1 bath • 792 ft²










































