Ideal starter property minutes from schools, shops and transport.
- Two double bedrooms plus usable loft space with Velux windows
- Long rear courtyard garden and front forecourt
- Double glazing and mains gas central heating
- Period red-brick terrace with character features
- EPC D (64); solid walls likely uninsulated, upgrade advised
- Small plot and average-sized rooms may limit space
- Freehold; council tax band B, low running council cost
- Popular location near good schools and transport links
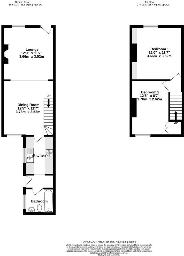
This Victorian mid-terrace offers a manageable two-bedroom layout ideal for first-time buyers seeking an affordable entry into York. The house benefits from double glazing, gas central heating and a long rear courtyard that provides private outdoor space uncommon for town-centre terraces.
Rooms are well proportioned for the size: a through lounge/dining room, a fitted kitchen, two double bedrooms and a usable loft with Velux windows that could become additional storage or a small study. A front forecourt gives attractive kerb appeal and there is a brick store at the rear.
Buyers should be aware of a few practical limitations. The property has solid brick walls with no assumed cavity insulation, and the energy rating is EPC D (64) —improvements would reduce running costs. The plot is small and rooms are average-sized, so larger families may find space limited. Overall maintenance and modest upgrades would add value.
For purchasers happy to take a modestly sized period home and invest in targeted improvements, this freehold terrace represents good value in a popular location close to well-regarded schools and local amenities. It also offers investor potential, with a rough rental estimate of around £12,500 per annum.
2 bedroom terraced house for sale in St. Pauls Terrace, York, YO24 — £325,000 • 2 bed • 1 bath • 664 ft²
2 bedroom terraced house for sale in Swinerton Avenue, York, YO26 — £260,000 • 2 bed • 1 bath • 1098 ft²
2 bedroom terraced house for sale in Albany Streey, York, YO26 — £220,000 • 2 bed • 1 bath • 563 ft²
2 bedroom terraced house for sale in Amberley Street, York, YO26 — £250,000 • 2 bed • 1 bath • 744 ft²
2 bedroom terraced house for sale in Yearsley Crescent, York, YO31 — £230,000 • 2 bed • 1 bath • 564 ft²
2 bedroom terraced house for sale in Ratcliffe Street, York, YO30 — £250,000 • 2 bed • 1 bath • 773 ft²










































































































































































