Bright, compact home near York centre ideal for first-time buyers.
Freehold Victorian mid-terrace with period brick frontage
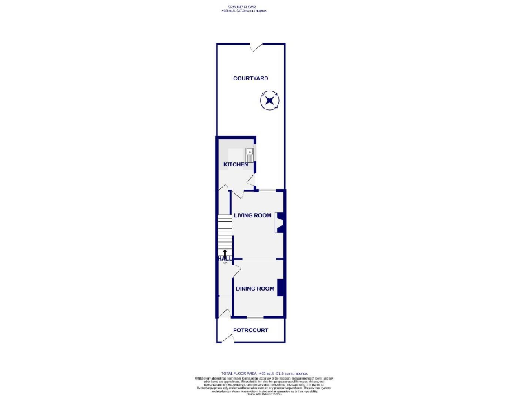
A well-proportioned two-bedroom Victorian terrace set within easy walking distance of York city centre and the train station. High ceilings and large sash windows create bright, flexible living space, with an open-plan living and dining area that suits modern layouts. The kitchen leads out to a compact, south-facing courtyard — a low-maintenance outdoor space for morning sun or a small barbecue.
Both bedrooms are doubles on the first floor and the property is offered freehold, making it a straightforward purchase for a first-time buyer or an investor seeking a central York rental. The house retains period character externally while the interior presents a contemporary feel with wooden floors and a focal fireplace in the living area.
Practical points to note: the plot is small with a modest rear yard and on-street parking only. EPC rating is currently TBC and prospective buyers may want to confirm energy performance. Council Tax Band B indicates relatively low running costs. Overall, this compact terrace is best suited to buyers wanting a centrally located, manageable home or a city-centre rental with good commuter links.
2 bedroom terraced house for sale in Albany Streey, York, YO26 — £220,000 • 2 bed • 1 bath • 563 ft²
2 bedroom terraced house for sale in Rosebery Street, York, North Yorkshire, YO26 — £210,000 • 2 bed • 1 bath • 620 ft²
2 bedroom terraced house for sale in Hanover Street West, York YO26 4YB, YO26 — £225,000 • 2 bed • 1 bath • 644 ft²
2 bedroom terraced house for sale in Yearsley Crescent, York, YO31 — £230,000 • 2 bed • 1 bath • 564 ft²
2 bedroom terraced house for sale in Garfield Terrace, Leeman Road, York, YO26 4XU, YO26 — £210,000 • 2 bed • 1 bath • 513 ft²
2 bedroom terraced house for sale in Salisbury Terrace, York, YO26 — £220,000 • 2 bed • 1 bath • 560 ft²






















































