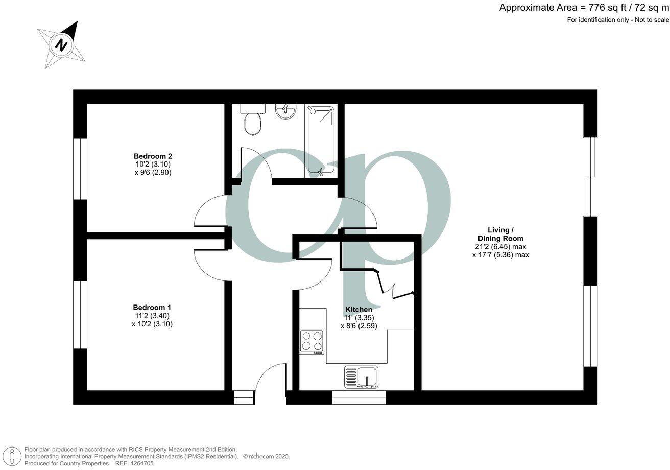
**Standout Features:**
- Detached bungalow with single-storey living
- Spacious open-plan living/dining room with patio access to an enclosed garden
- Two double bedrooms, versatile for different uses (guest room/home office)
- Modern kitchen and bathroom
- Off-road parking for two vehicles via block-paved driveway
- Very low crime rate and excellent mobile signal & fast broadband
- Close proximity to schools & local amenities (0.5 miles)
**Potential Concerns:**
- Average room sizes may not suit larger family needs
- Cavity insulation details not specified
Discover the charm of this well-presented two-bedroom detached bungalow, perfectly situated on the outskirts of town, combining the tranquility of countryside living with convenient access to urban amenities. The open-plan living and dining area is ideal for entertaining, while the modern kitchen and bathroom enhance its move-in-ready appeal. Enjoy outdoor moments in the lovely enclosed rear garden, and rest easy with off-street parking for two vehicles.
Excellent local schools and a very low crime rate make this property perfect for families and first-time buyers alike. With a Council Tax rating that's affordable and quick access to a mainline rail station, this home offers both comfort and connectivity. Don't miss the opportunity to make this cozy bungalow your own—schedule a viewing today to envision your future in this exclusive and serene setting.
2 bedroom semi-detached bungalow for sale in Station Road, Flitwick, MK45 — £425,000 • 2 bed • 1 bath • 803 ft²
3 bedroom bungalow for sale in Maulden Road, Flitwick, MK45 — £425,000 • 3 bed • 1 bath • 1031 ft²
2 bedroom bungalow for sale in Elmsdale Road, Wootton, Bedfordshire, MK43 — £385,000 • 2 bed • 1 bath • 974 ft²
3 bedroom bungalow for sale in Willow Way, Flitwick, MK45 — £450,000 • 3 bed • 1 bath • 845 ft²
3 bedroom detached bungalow for sale in Home Road, Kempston, Bedford, MK43 — £470,000 • 3 bed • 1 bath • 1098 ft²
2 bedroom semi-detached bungalow for sale in Willow Way, Flitwick, MK45 — £350,000 • 2 bed • 1 bath • 632 ft²






















































