5,000 sq ft freehold plot with town-centre frontage and 14-unit proposal, subject to planning..
- Freehold plot approximately 5,000 sq ft with Bath Street road frontage
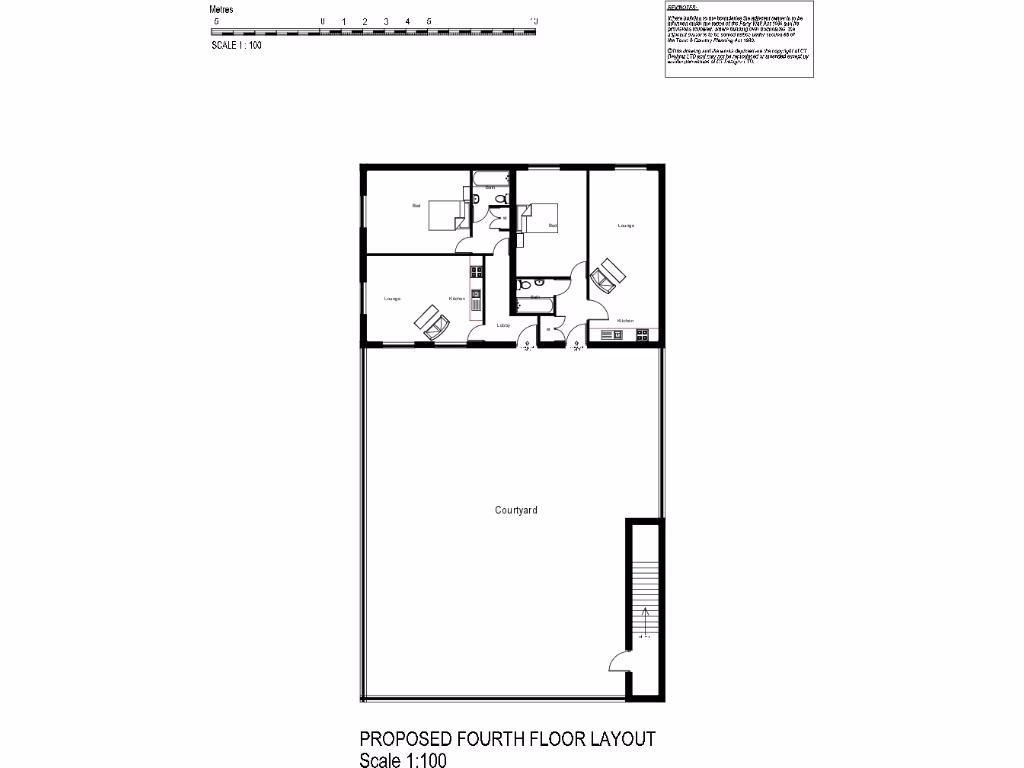
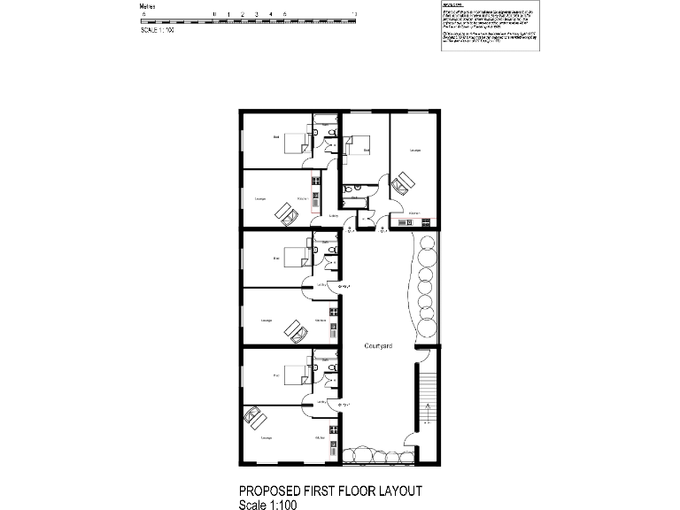
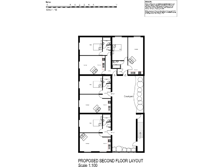
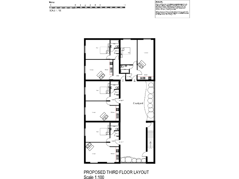
- Proposal for 14 one-bed apartments (planning not granted)
- Scheme includes undercroft parking for 14 cars (proposed)
- Possible GDV in excess of £1.5m (subject to consent)
- Tenure currently unknown — buyer to verify legal title
- Located 0.3 miles from Walsall town centre, good transport links
- Area marked very deprived; crime rate above average
- Brownfield inner-city site — remediation and construction required
A rare freehold land opportunity in Walsall town centre offering c.5,000 sq ft with direct Bath Street frontage. The site sits approximately 0.3 miles from the town centre and is well placed for local amenities, public transport and an active rental market made up of young families and students.
A developer proposal has been drawn up for 14 one-bedroom apartments with an undercroft scheme providing 14 parking spaces, subject to planning consent. With a possible GDV in excess of £1.5m once completed, the plot presents clear upside for a residential infill scheme in an established urban location.
Buyers should note material considerations: tenure is currently unknown, planning is not granted and the area is classified as very deprived with above-average crime levels. Broadband speeds are average (mobile signal excellent). The site is brownfield/inner-city and will require standard remediation and construction costs, plus planning and permitting work.
This parcel is best suited to experienced developers or investors who can manage planning risk and deliver a small-scale apartment scheme. The combination of town-centre proximity, proposed parking and a compact footprint could make for a practical build-and-let or sell-on development once consents and remediation are secured.
Land for sale in Land To The North Of High Street, Bloxwich, West Midlands, WS3 — £350,000 • 1 bed • 1 bath
Land for sale in Willenhall, Walsall, WV12 — £260,000 • 1 bed • 1 bath • 1693 ft²
1 bedroom detached house for sale in West Bromwich Street, Walsall, WS1 — £70,000 • 1 bed • 1 bath
Land for sale in Land off, Ridding Lane & Addison Street, Wednesbury, WS10 — £250,000 • 1 bed • 1 bath • 8712 ft²
Commercial development for sale in Land at Wellhead Lane and Aldridge Road, Wellhead Lane, Birmingham, B42 2SY, B42 — POA • 1 bed • 1 bath
Land for sale in Land at Bath Street, Dudley, DY2 8RN, DY2 — £50,000 • 1 bed • 1 bath • 2962 ft²






























