Perfect family starter near top-rated Wimbledon Park Primary with an impressive 44ft private outdoor retreat.
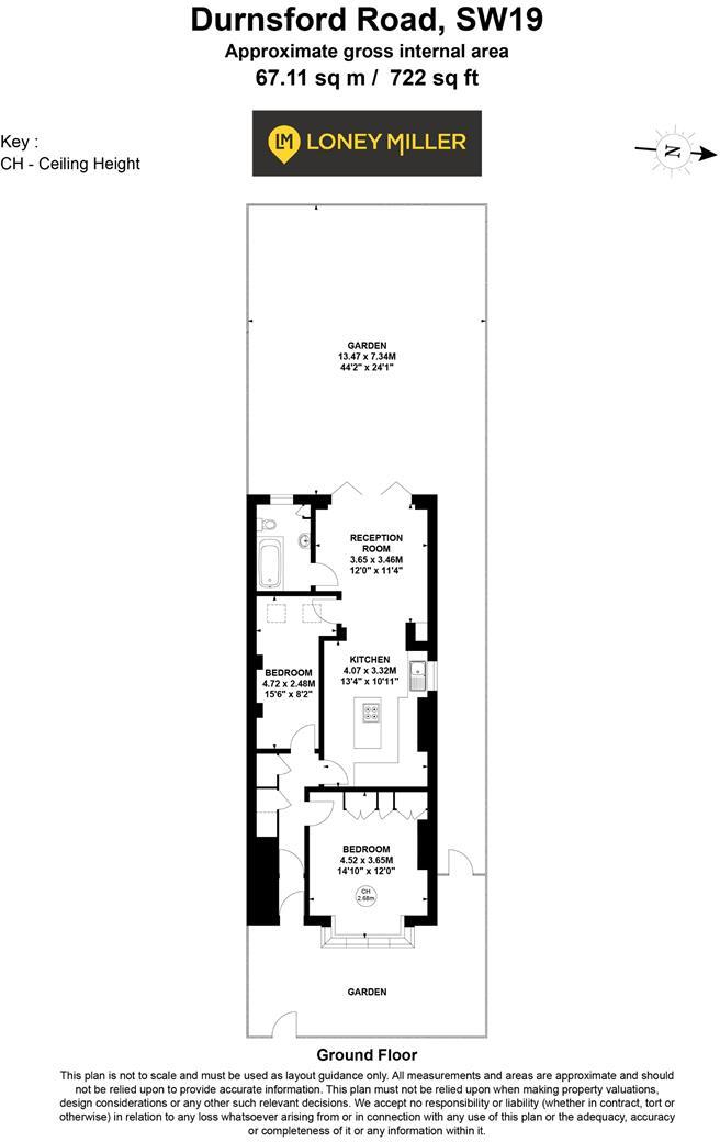
- Two double bedrooms, versatile layout for family or rental use
- Large private rear garden approximately 44ft in length
- Open-plan kitchen/dining/living with sliding doors to garden
- New 999-year lease included; share of freehold tenure
- Well appointed kitchen and bathroom; contemporary finishes throughout
- Single bathroom only, may be limiting for larger households
- Average overall internal size; no major structural concerns reported
- Excellent nearby amenities and top-rated local primary school catchment
This bright two-bedroom garden flat offers a modern open-plan kitchen, dining and living area with sliding doors onto a private 44ft rear garden. The apartment sits on the ground floor and benefits from a new 999-year lease and share of freehold, giving long-term security for owner-occupiers or buy-to-let purchasers.
Accommodation is well proportioned with two double bedrooms and a well-appointed bathroom, making this a practical family home or rental investment. The fitted kitchen overlooks the living space, creating a sociable layout that works for everyday life and entertaining in the garden during warmer months.
Positioned within the priority catchment for Wimbledon Park Primary School and close to the shops, cafes and transport links around Durnsford Road, Earlsfield and Southfields, the location is a major draw. Broadband speeds and mobile signal are strong, and local amenities and schooling are excellent.
Buyers should note the property has a single bathroom and an overall average internal size, which may limit flexibility for some households. Council tax levels are described as affordable and there is no flooding risk.
2 bedroom flat for sale in Durnsford Road, Southfields, London, SW19 — £575,000 • 2 bed • 1 bath • 824 ft²
2 bedroom flat for sale in Woodside, Wimbledon, SW19 — £600,000 • 2 bed • 1 bath • 783 ft²
2 bedroom apartment for sale in Wimbledon Park Road, SW18 — £675,000 • 2 bed • 2 bath • 724 ft²
2 bedroom flat for sale in Leopold Road, Wimbledon, London, SW19 — £675,000 • 2 bed • 1 bath • 647 ft²
2 bedroom flat for sale in Pelham Road, Wimbledon, London, SW19 — £465,000 • 2 bed • 1 bath • 583 ft²
2 bedroom apartment for sale in Quinton Street, London, SW18 — £750,000 • 2 bed • 1 bath • 812 ft²


























