Substantial Monkton build plot with lapsed consent — ideal for developers or investors..
Extremely large village‑centre development site with flexible potential
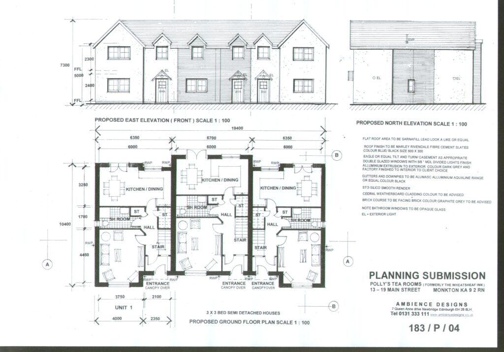
Lapsed consent for three x 3‑bed villas (each ≈1,000 sq ft)
Previously granted commercial permission in 2021 (details on request)
South‑westerly private gardens and off‑street parking for proposals
Fast broadband; mobile signal average
No flood risk recorded
Tenure unknown — legal/title checks required
Wider area classed as very deprived, may affect finance/values
A rare development plot in Monkton village centre offering a substantial build site with previously granted (now lapsed) consent for three three‑bed villas. Each villa was drawn at about 1,000 sq ft; the site also benefited from commercial permission in 2021, indicating flexible potential for residential or mixed use. The location sits under KA9 2RN close to local shops, primary school and under 2 miles from Prestwick and its rail link to Glasgow.
The site is best suited to an investor or developer able to refresh planning consent. Benefits include south‑westerly private gardens for the proposed homes, off‑street parking, fast broadband and no flooding risk. Onward sales or rental prospects should be bolstered by village amenities (post office, shop, bus links) and proximity to the coast and larger town facilities.
Be aware of material considerations: the previously granted planning consent has lapsed, tenure is recorded as unknown, and the wider area is classified as very deprived — factors that may affect finance, grant eligibility and resale values. Mobile signal is average. Prospective buyers should obtain local authority planning advice and carry out due diligence on title and services before exchange.
This is a clear opportunity for a developer prepared to reinstate consent or pursue alternative commercial/residential schemes. Pricing at £110,000 reflects the site condition and the work required to secure new permissions and services.
Land for sale in Baird Road / B739 , Monkton, South Ayrshire, KA9 — £1,000,000 • 1 bed • 1 bath
Property for sale in Plot at 33 Maybole Road, Ayr, KA7 2PZ, KA7 — £125,000 • 1 bed • 1 bath • 396 ft²
Bungalow for sale in Observer Court, Prestwick, South Ayrshire, KA9 — £27,000 • 1 bed • 1 bath
Commercial development for sale in 3 Midton Road, Prestwick, KA9 1PJ, KA9 — POA • 1 bed • 1 bath • 13068 ft²
Land for sale in Spittal Hill, Kilmarnock, KA1 5NX, KA1 — £125,000 • 1 bed • 1 bath
Land for sale in Land To the Rear of 97/99, Main Street (off Salisbury Place), Prestwick, South Ayrshire, KA9 1JR, KA9 — £180,000 • 1 bed • 1 bath • 11325 ft²










































































































































































































