Ready-to-move-in period house near hospital and local amenities.
Three bedrooms with modernised kitchen and bathroom
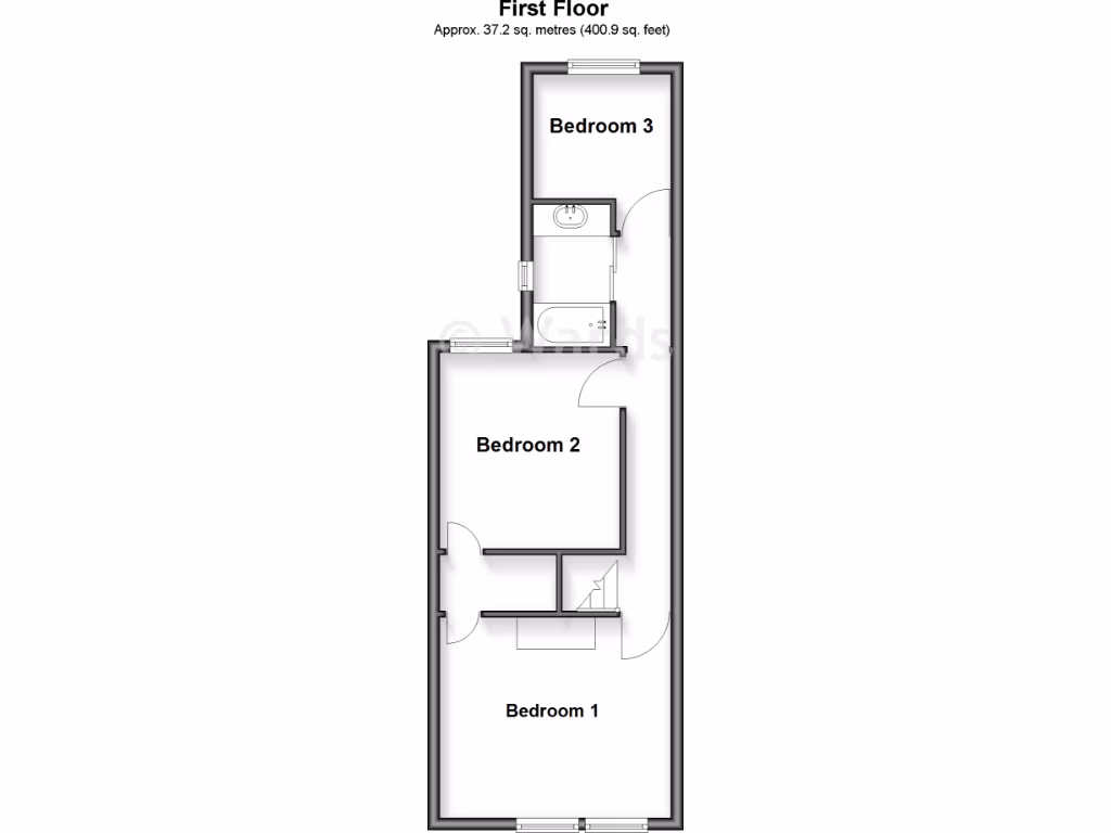
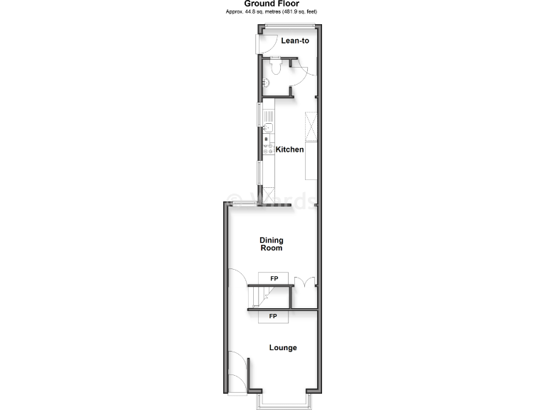
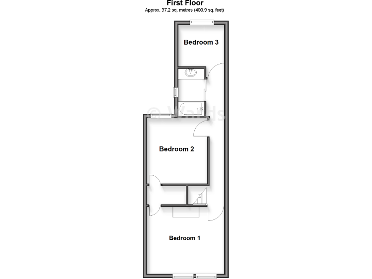
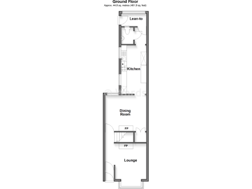
This well-presented Victorian mid-terrace offers three bedrooms across approximately 840 sq ft and is offered as a freehold. Recent refurbishment includes a modern kitchen and bathroom, gas central heating with a boiler and radiators, and double glazing for improved comfort and efficiency. The property is ready to move into for a family or first-time buyer seeking a period home with contemporary fixtures.
Layout is straightforward and practical: a bay-fronted living room, separate dining room, fitted kitchen, lean-to and cloakroom on the ground floor, with three bedrooms and a family bathroom upstairs. A small front garden and an enclosed rear garden provide outdoor space for children or pets. Room sizes are modest; the third bedroom is compact and better suited as a nursery, home office or occasional guest room.
Location is convenient for local amenities and is close to Medway Maritime Hospital, with fast broadband available and a range of nearby shops, healthcare and transport links. Local schools include several rated Good by Ofsted, though a number of nearby schools have mixed or improving reports.
Buyers should note material drawbacks honestly: the area has higher-than-average crime and is classed as deprived, and the property’s original solid brick walls are likely uninsulated. Only one bathroom serves three bedrooms. These factors affect running costs, resale considerations and may influence insurance and mortgage options. Viewing is recommended to assess suitability for family living or as a starter home.
3 bedroom terraced house for sale in First Avenue, Chatham, Kent, ME4 — £260,000 • 3 bed • 2 bath • 829 ft²
3 bedroom end of terrace house for sale in Institute Road, Chatham, Kent, ME4 — £230,000 • 3 bed • 1 bath • 1163 ft²
3 bedroom end of terrace house for sale in Crosley Road, Gillingham, Kent, ME7 — £310,000 • 3 bed • 1 bath • 1195 ft²
3 bedroom terraced house for sale in Melville Road, Maidstone, Kent, ME15 — £260,000 • 3 bed • 1 bath • 685 ft²
3 bedroom terraced house for sale in Victoria Road, Chatham, Kent, ME4 — £280,000 • 3 bed • 1 bath • 937 ft²
3 bedroom terraced house for sale in Milburn Road, Gillingham, Kent, ME7 — £270,000 • 3 bed • 1 bath • 872 ft²










































