HP22 4FU - 3 bedroom semidetached house for sale in Romney Lane, Quain…

View on Property Piper

3 bedroom semi-detached house for sale in Romney Lane, Quainton, Aylesbury, HP22

Summary - 10 ROMNEY LANE QUAINTON AYLESBURY HP22 4FU

3 bed 1 bath Semi-Detached

Modern three-bed family home in Quainton with EV charging and top school catchment..
Chain-free three-bedroom semi-detached home, built 2021
Open-plan kitchen/living/dining ideal for family living
Driveway parking with EV charger and enclosed rear garden
Within Waddesdon secondary school catchment (highly regarded)
Single family bathroom only — may not suit larger households
Heating via LPG boiler (bulk deliveries) — consider running costs
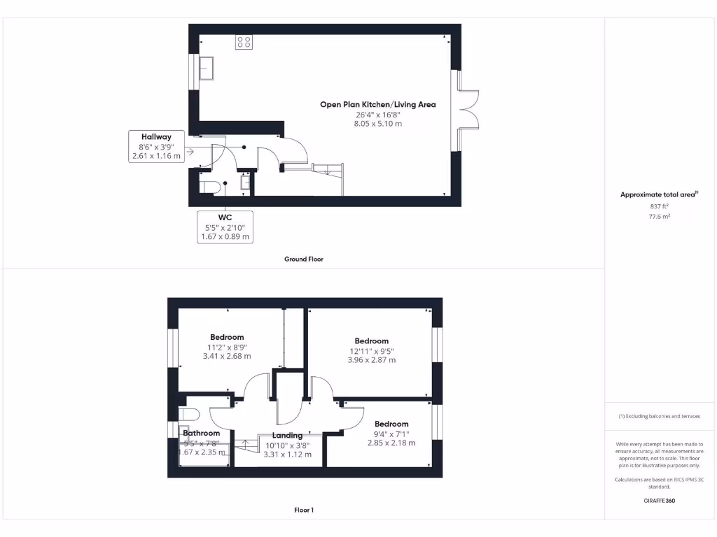
Compact/average total size (approx 837–927 sq ft) for small families
Low crime area with fast broadband and decent village amenities
This immaculate three-bedroom semi-detached home sits in Quainton village within the sought-after Waddesdon secondary school catchment, making it practical for families. Built in 2021, the house presents modern fixtures, bright open-plan living and low immediate maintenance needs. The property is offered chain-free, so a quick move is possible.

The ground floor centres on a generous open-plan kitchen/living/dining space that suits everyday family life and informal entertaining. A downstairs cloakroom and useful storage (airing cupboard and loft access) add convenience. Outside, an enclosed rear garden and front lawn provide safe outdoor space for children and pets, while a private driveway includes an EV charging point.

Heating is provided by an LPG boiler and radiators; this works well but means fuel is bulk LPG rather than mains gas — buyers should note ongoing running costs and delivery requirements. The house has one family bathroom and three bedrooms, so it is best suited to small or growing families rather than larger households needing multiple bathrooms.

The village offers a strong community feel with local shops, a pub and green spaces, plus reasonable rail links at nearby Aylesbury Parkway. Broadband speeds are fast and crime levels are very low, supporting a peaceful and well-connected family lifestyle. Council tax is moderate. Overall, this is a low-maintenance, modern family home in an attractive rural setting with excellent schooling options.

Property Details

Brochure Descriptions

Image Descriptions

Floorplan Description

Rooms

Textual Property Features

Target Audience

AI Tags

Detected Visual Features

EPC Details

Nearby Schools

Nearest Bars And Restaurants

,,,,}

Nearest General Shops

,,}

Nearest Grocery shops

,,}

Nearest Supermarkets

,,}

Nearest Religious buildings

,,}

Nearest Medical buildings

,,,}

Nearest Airports

}

Nearest Leisure Facilities

,,,,}

Nearest Tourist attractions

,,}

Nearest Train stations

,,,,}

Nearest Bus stations and stops

,,,,}

Nearest Hotels

,,}

Tags

Local Market Stats

Similar Properties

Meta

High Res Images

Compatible Images

Low res Images

Thumbnails

Raw Images

High Res Floorplan Images

Compatible Floorplan Images

Low res Floorplan Images

FloorplanImages Thumbnail

Raw Floorplan Images