B79 9JS - 3 bed spacious village semi in Manor Lane, B79 9JS

View on Property Piper

3 bedroom semi-detached house for sale in Manor Lane, Harlaston, B79

Summary - MANOR HOUSE, MANOR LANE, TAMWORTH, HARLASTON B79 9JS

3 bed 2 bath Semi-Detached

Versatile three-bedroom semi with annex, large gardens and recent upgrades in peaceful village setting.
- Exceptionally large interior: nearly 3,000 sq ft of versatile space
- Flexible annex with separate entrance, cloakroom and showerroom
- Large, tiered mature garden with veranda and outdoor room
- New boiler, serviced radiators and full electrical certification (4.5 yrs)
- All external doors and windows replaced within last 4.5 years
- Heated by bulk LPG with external fuel tank (not mains gas)
- Average broadband and mobile signal in village location
- Substantial workshop and studio ideal for hobbies or home business
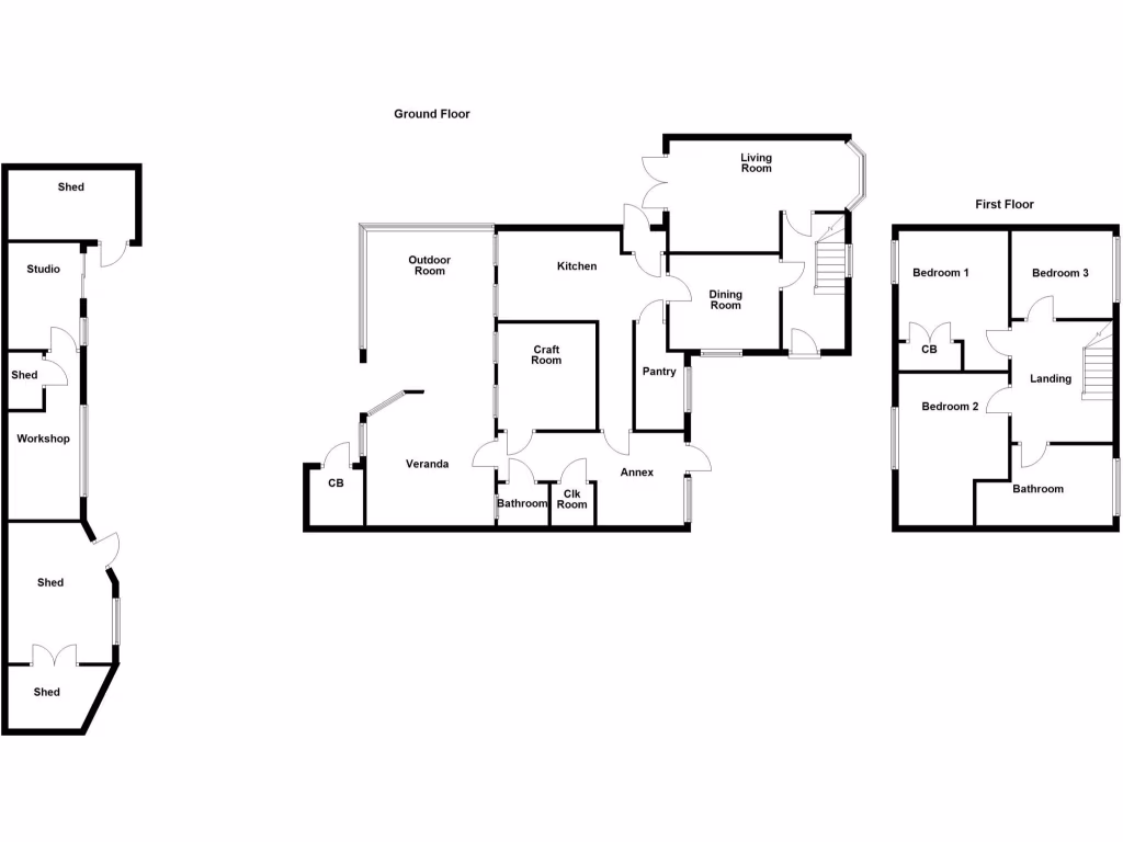
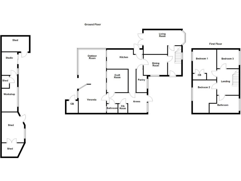
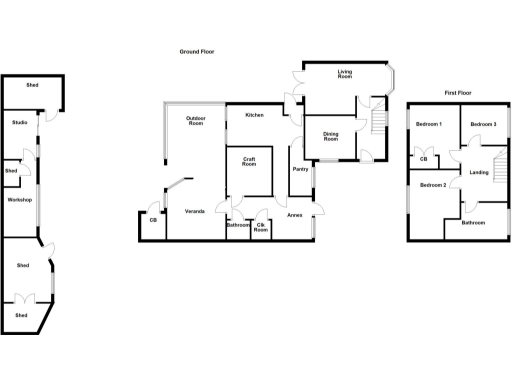
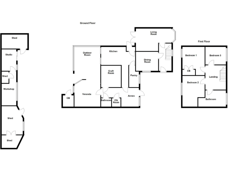
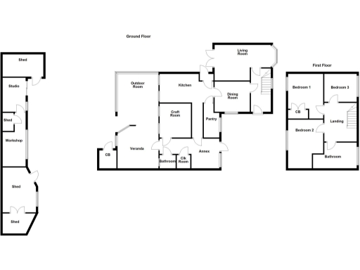
Manor House is a deceptively spacious three-bedroom semi with flexible accommodation across a large, mature plot in a village setting. The ground floor offers multiple reception rooms — living room, dining room, craft room — plus a generous fitted kitchen with pantry and direct garden access. An annex with its own entrance, cloakroom and showerroom creates genuine multi-generational or home-business potential.

The property has seen careful modernisation in the last 4.5 years: a new boiler and serviced radiators/towel rails, full electrical testing and certification, new external doors and windows, and added loft insulation. The result is a home that combines character features with practical, energy-conscious improvements and many usable rooms, including a studio and large workshop.

Outside, the tiered, beautifully maintained gardens are a standout — extensive mature planting, lawned and terraced areas and a veranda/outdoor room that links indoor and outdoor living. Driveway parking is available and the plot is significantly larger than average for the area, offering scope for further landscaping or extension subject to consents.

Important practical points: the property is heated by an LPG boiler served from a large external fuel tank (not mains gas), broadband and mobile signal are average, and the house is semi-detached. While newly renovated, the size and age of the plot mean ongoing garden maintenance should be expected. Viewing is recommended to appreciate the scale and flexible layout fully.

Property Details

Brochure Descriptions

Image Descriptions

Floorplan Description

Rooms

Textual Property Features

Target Audience

AI Tags

Detected Visual Features

EPC Details

Nearby Schools

Nearest Bars And Restaurants

,,,,}

Nearest General Shops

,,}

Nearest Grocery shops

,,}

Nearest Supermarkets

,,}

Nearest Religious buildings

,,}

Nearest Medical buildings

,,,}

Nearest Airports

,}

Nearest Leisure Facilities

,,,,}

Nearest Tourist attractions

,,}

Nearest Train stations

,,,,}

Nearest Bus stations and stops

,,,,}

Nearest Hotels

,,}

Tags

Local Market Stats

AirBnB Data

Similar Properties

Meta

High Res Images

Compatible Images

Low res Images

Thumbnails

Raw Images

High Res Floorplan Images

Compatible Floorplan Images

Low res Floorplan Images

FloorplanImages Thumbnail

Raw Floorplan Images