Five bedrooms, renovated character house with private driveway and patio.
Grade II listed 17th‑century former post office, sympathetically modernised
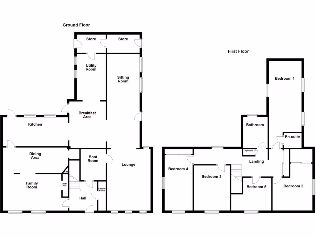
An exceptional Grade II listed family home in the heart of Elford, combining 17th‑century character with thorough modern renovation. The house provides flexible living across generous reception rooms — lounge, snug, family room and separate dining — plus a breakfast kitchen, utility, boot room and handy ground‑floor shower room.
Five double bedrooms sit on the first floor, including a large principal suite with en‑suite, and a traditional four‑piece family bathroom. Outside there is a low‑maintenance slab patio to the rear, a private side garden and a substantial off‑street driveway providing easy parking for several vehicles.
This property is freehold and offered chain free, ready for immediate occupation. Its listed status preserves important historic features and limits structural alterations, which should be considered by buyers wanting major changes. Practical points: the plot is small, council tax is high, and local mobile and broadband speeds are average.
Set in a well‑regarded rural hamlet close to good primary schools and village amenities, the house will suit families seeking character, space and modern comforts in an affluent countryside setting. Investors or buyers seeking large extensions should note listing constraints and plan accordingly.
3 bedroom detached house for sale in Bradley, Stafford, ST18 — £600,000 • 3 bed • 2 bath • 1905 ft²
4 bedroom detached house for sale in Croft Close, Elford, B79 — £499,950 • 4 bed • 2 bath • 1809 ft²
5 bedroom detached house for sale in The Square, Elford, B79 — £695,000 • 5 bed • 2 bath • 2517 ft²
3 bedroom bungalow for sale in Church Road, Elford, B79 — £650,000 • 3 bed • 2 bath • 1690 ft²
2 bedroom cottage for sale in Park Road, Alrewas, DE13 — £350,000 • 2 bed • 1 bath • 1100 ft²
4 bedroom character property for sale in Post Office Road, Alrewas, Burton upon Trent, DE13 — £545,000 • 4 bed • 3 bath • 1403 ft²






























































































































































































