Spacious south-facing house with golf and sea views on a large private plot.
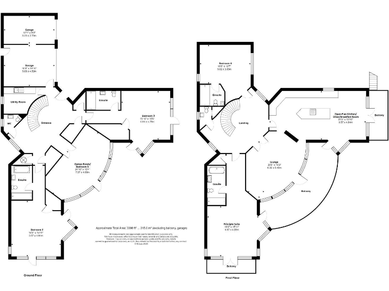
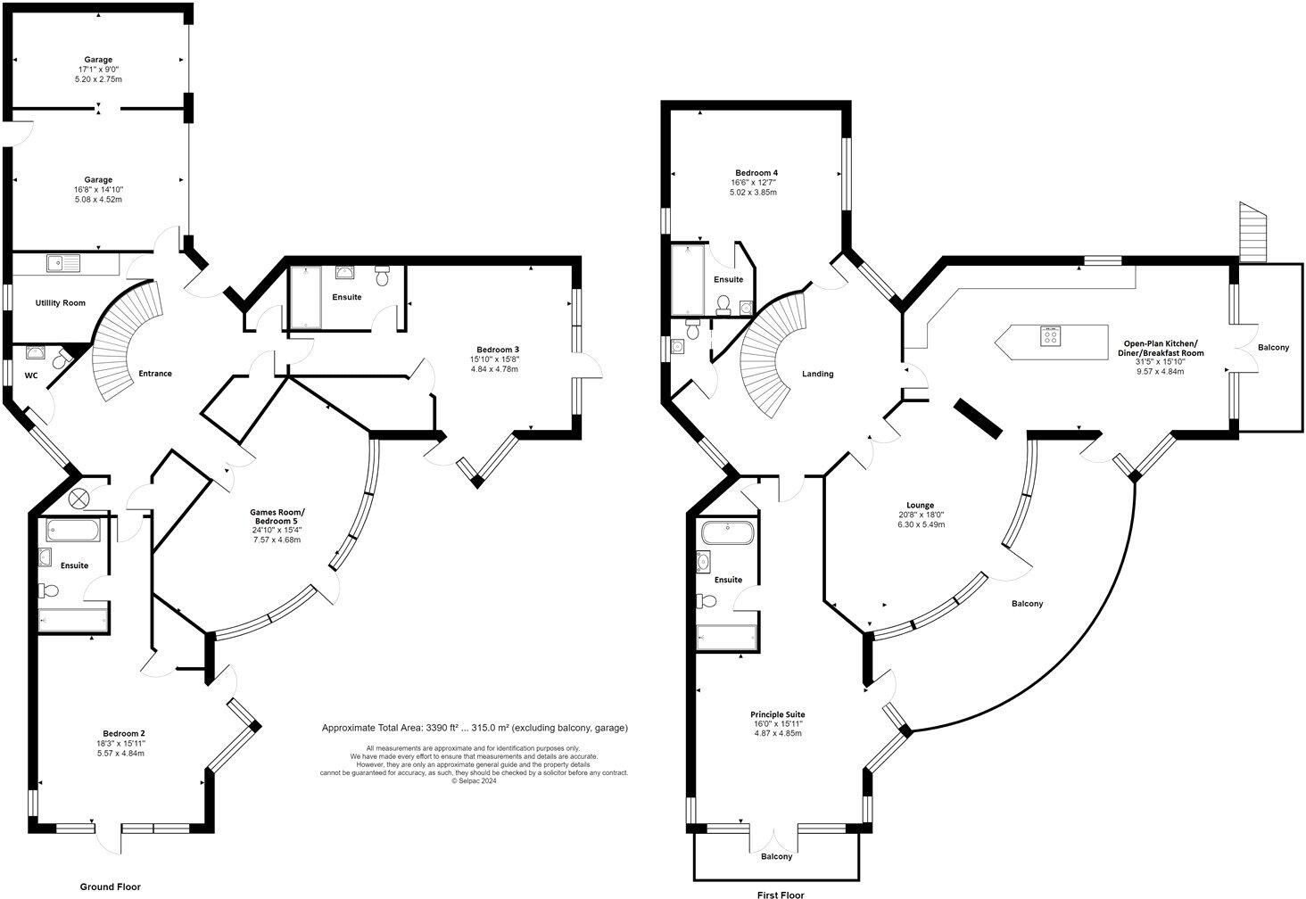
- Extremely large 3,390 sq ft detached house
- Four bedrooms and four bathrooms, multi-storey layout
- Built 2019; one of only four bespoke homes on site
- South-facing with panoramic golf and sea views
- Underfloor heating and modern boiler system
- Landscaped garden, garage and large plot
- No flood risk; crime level very low
- Local area classed as very deprived; higher upkeep due to coastal exposure
Set in an elevated position in Langland, this contemporary detached house (built 2019) delivers nearly 3,390 sq ft of bright, south-facing living arranged over multiple levels. Large floor-to-ceiling glazing, wrap-around stonework and glass balconies frame sweeping views over Langland golf course and the sea, while landscaped grounds and a garage complete the picture for comfortable coastal living. Underfloor heating and modern boiler systems provide efficient warmth throughout.
One of only four bespoke homes on Westwinds, the property will suit buyers seeking privacy, generous internal space and a premium coastal aspect. The layout includes four double bedrooms and four bathrooms, substantial reception space and extensive glazing that emphasises light and outlook. Practical advantages include freehold tenure, no flood risk, excellent mobile signal and fast broadband — useful for remote working.
Buyers should note the local context: the wider area is classified as “ageing in suburbia” with a higher level of area deprivation, despite very low recorded crime. The coastal location and large glazed elevations mean ongoing external maintenance and cleaning will be required, and any seaside property can incur higher upkeep costs over time. Council tax banding is not specified.
At the listed price this is a specialist purchase: attractive to families or buyers seeking a substantial, modern coastal house with strong views and high-spec finishes, but also one that requires commitment to maintain large glazing, grounds and external finishes associated with a coastal home.
4 bedroom detached house for sale in Pentre Nicklaus Village, Llanelli, SA15 — £799,995 • 4 bed • 5 bath • 2239 ft²
4 bedroom town house for sale in Bwlchygwynt, Llanelli, Carmarthenshire, SA15 — £430,000 • 4 bed • 3 bath • 1454 ft²
Detached house for sale in Cysgod Y Deri, Llanedi Road, Pontarddulais, Swansea, SA4 — £700,000 • 1 bed • 1 bath • 403 ft²
4 bedroom detached house for sale in Higher Lane, Langland, Swansea, SA3 — £1,000,000 • 4 bed • 3 bath • 2508 ft²
4 bedroom detached house for sale in Coltshill Drive, SWANSEA, West Glamorgan, SA3 — £800,000 • 4 bed • 3 bath
4 bedroom detached house for sale in Melcorn Drive, Newton, Swansea, SA3 4UN, SA3 — £950,000 • 4 bed • 2 bath • 2142 ft²


















































































































































