**Standout Features:**
- Four spacious bedrooms with en-suite facilities for master and guest.
- Stunning panoramic views of the Gower Peninsula.
- Expansive open-plan living area with modern design.
- Ample parking with an integral garage.
- Energy-efficient features; EPC rating B.
- Chain-free sale.
**Potential Concerns:**
- High council tax rate (Band G).
- Located in a relatively deprived area.
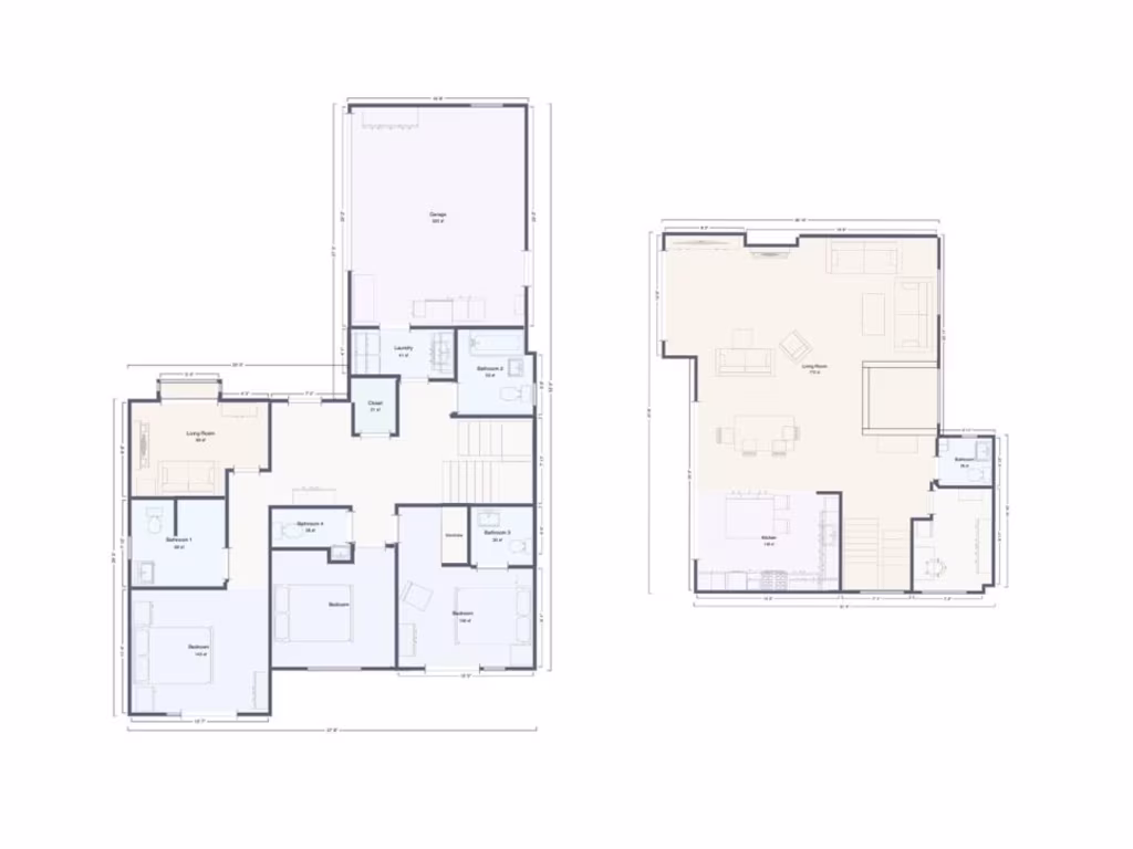
Discover an exceptional opportunity to own a beautifully presented four-bedroom detached home that masterfully blends luxury and functionality in a tranquil village setting. Designed in a unique upside-down style to maximize breathtaking views, the ground floor offers two en-suite bedrooms with direct access to the garden and stunning vistas, along with two additional bedrooms, a family bathroom, and utility space.
Ascend to the first floor and be captivated by the expansive open-plan living area, adorned with high ceilings and bi-folding doors leading to a spacious balcony – perfect for entertaining while soaking in the far-reaching panoramas. With an integral garage and a sizeable landscaped garden, this home is an ideal retreat for families or investors looking for rental potential in a sought-after location.
Despite a higher council tax band, the property's modern amenities and energy efficiency make it a smart choice for those seeking both comfort and elegance. Opportunities like this don’t last long—schedule your viewing and imagine the life awaiting you here!
Detached house for sale in Cysgod Y Deri, Llanedi Road, Pontarddulais, Swansea, SA4 — £700,000 • 1 bed • 1 bath • 403 ft²
4 bedroom detached house for sale in Dyffryn Road, Alltwen, Pontardawe, Swansea, SA8 — £535,000 • 4 bed • 3 bath • 2616 ft²
4 bedroom detached house for sale in Woollacott Drive, Newton, Swansea, SA3 — £575,000 • 4 bed • 1 bath • 1651 ft²
4 bedroom detached house for sale in Nicholaston, Penmaen, Swansea, SA3 — £1,150,000 • 4 bed • 3 bath • 3849 ft²
4 bedroom detached house for sale in Penyfai Lane, Llanelli, SA15 — £675,000 • 4 bed • 3 bath • 2130 ft²
5 bedroom detached house for sale in Coed Y Bronallt, Pontarddulais, Swansea, SA4 — £850,000 • 5 bed • 4 bath • 4843 ft²














































































































































































































