NW11 6PB - 5 bedroom semidetached house for sale in Northway, NW11

View on Property Piper

5 bedroom semi-detached house for sale in Northway, NW11

Summary - 21 NORTHWAY LONDON NW11 6PB

5 bed 2 bath Semi-Detached

Tudor‑style five-bedroom home with large garden backing onto Bigwood.
Five bedrooms across multiple floors, flexible family layout
This Tudor‑Revival semi presents a rare five-bedroom layout on a sizable, well-screened plot in NW11. Character features — original wood flooring, leadlight windows and two fireplaces — give the house immediate charm, while high ceilings and large windows deliver strong natural light throughout. The rear garden backs onto Bigwood, offering a leafy, private aspect that will suit families who value outdoor space and tranquillity.

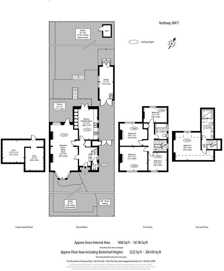
Accommodation is arranged over multiple floors with an eat‑in kitchen/breakfast room, a generous reception/dining room with French doors to the garden, and two bathrooms plus a guest WC. Practical extras include off‑street parking for two cars and a detached garage. The house’s location places shopping and transport at Temple Fortune and The Market Place within easy walking distance, and several well‑regarded schools are nearby.

This property is well suited to a growing family seeking period character and a large garden in a highly desirable, very affluent area. Buyers should note there are only two full bathrooms for five bedrooms and council tax is relatively high — factors to consider for family logistics and running costs. The house presents clear opportunity for sympathetic updating to create a contemporary family home while retaining original features.

No flooding risk is recorded and the plot (approx. 380m²) is a genuine asset. Overall, the house offers a compelling mix of character, space and location, with straightforward potential to improve value through modernisation where desired.

Property Details

Brochure Descriptions

Image Descriptions

Floorplan Description

Rooms

Textual Property Features

Target Audience

AI Tags

Detected Visual Features

Nearby Schools

Nearest Bars And Restaurants

,,,,}

Nearest General Shops

,,}

Nearest Grocery shops

,,}

Nearest Supermarkets

,,}

Nearest Religious buildings

,,}

Nearest Medical buildings

,,,}

Nearest Airports

,}

Nearest Leisure Facilities

,,,,}

Nearest Tourist attractions

,,}

Nearest Train stations

,,,,}

Nearest Bus stations and stops

,,,,}

Nearest Hotels

,,}

Tags

Local Market Stats

AirBnB Data

Similar Properties

Meta

High Res Images

Compatible Images

Low res Images

Thumbnails

Raw Images

High Res Floorplan Images

Compatible Floorplan Images

Low res Floorplan Images

FloorplanImages Thumbnail

Raw Floorplan Images