BR3 1JH - 3 bedroom semidetached house for sale in Beckett Walk, Beck…

View on Property Piper

3 bedroom semi-detached house for sale in Beckett Walk, Beckenham, BR3

Summary - Beckett Walk, Beckenham, BR3 BR3 1JH

3 bed 1 bath Semi-Detached

**Standout Features:**
- Three spacious bedrooms
- Located in a quiet cul-de-sac
- Light-filled reception/dining room with conservatory access
- Fully fitted kitchen with ample storage
- Well-maintained rear garden with patio and lawn
- Off-street parking and garage
- Double glazing throughout for energy efficiency
- Freehold tenure, chain-free
- Close to multiple transport links and local amenities

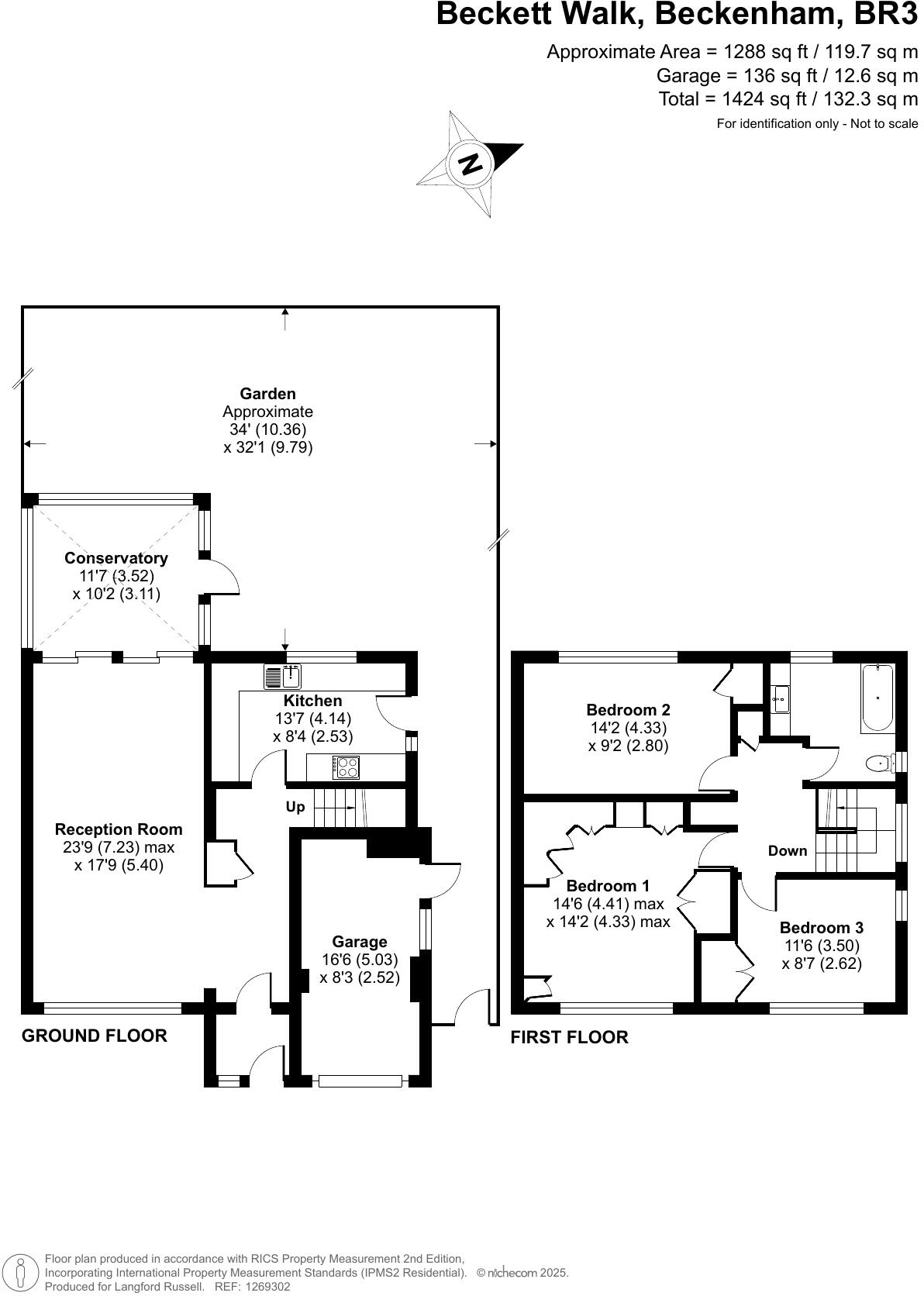
This charming three-bedroom semi-detached home, nestled in a serene cul-de-sac, is perfect for families seeking a blend of comfort and convenience. Boasting a spacious layout, the property features a bright reception/dining room that seamlessly flows into a conservatory, providing additional living space and easy access to a well-maintained garden, ideal for outdoor enjoyment. The fully fitted kitchen is ready for culinary adventures, complemented by generous worktop and unit space.

Positioned within a reputable school catchment, including the highly-rated Alexandra Primary School just 0.7 miles away, this home ensures excellent educational opportunities for children. With off-street parking, a garage, and double glazing throughout, you can enjoy comfort and practicality. Just a short walk from Kent House and New Beckenham stations, the vibrant High Street of Beckenham offers a plethora of dining, shopping, and entertainment options.

While the property showcases great potential for family living, it’s important to note its mid-20th-century construction, which may invite opportunities for updates or renovations to suit your taste. With crime rates being average in this affluent community and fast broadband connectivity, this home is not just a property; it’s a place where memories can flourish. Secure your viewing today—opportunities like this won’t last long!

Property Details

Image Descriptions

Rooms

Textual Property Features

Detected Visual Features

EPC Details

Nearby Schools

Nearest Bars And Restaurants

,,,,}

Nearest General Shops

,,}

Nearest Grocery shops

,,}

Nearest Supermarkets

,,}

Nearest Religious buildings

,,}

Nearest Medical buildings

,,,}

Nearest Airports

,,}

Nearest Leisure Facilities

,,,,}

Nearest Tourist attractions

,,}

Nearest Train stations

,,,,}

Nearest Bus stations and stops

,,,,}

Nearest Hotels

,,}

Tags

Local Market Stats

AirBnB Data

Similar Properties

Meta

High Res Images

Compatible Images

Low res Images

Thumbnails

Raw Images

High Res Floorplan Images

Compatible Floorplan Images

Low res Floorplan Images

FloorplanImages Thumbnail

Raw Floorplan Images