Comfortable family home with private garden and strong transport links.
Converted garage provides versatile additional reception or fourth bedroom
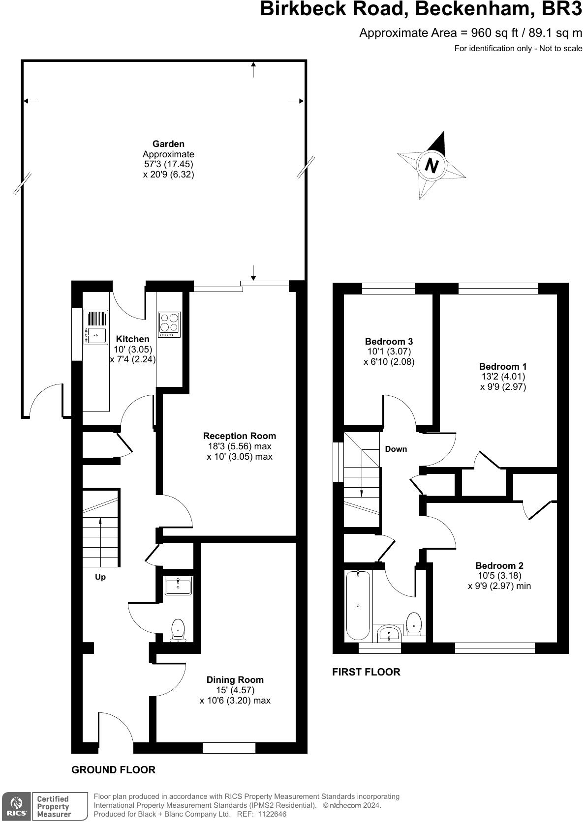
This semi‑detached family home on Birkbeck Road combines practical living space with excellent transport links. The converted garage provides flexible extra accommodation — ideal as a fourth bedroom, home office, or reception — while a through lounge diner and contemporary kitchen support everyday family life.
Three double bedrooms and a modern family bathroom occupy the first floor, offering comfortable sleeping space for a growing household. Outside there’s a private, secluded garden for children and al fresco dining, plus off‑street parking for one car. The property is freehold and around 960 sq ft, suited to those seeking a manageable family home in Beckenham.
Energy performance is rated C, and the house dates from the late 1960s/early 1970s. The cavity walls were built without insulation (assumed), so buyers should budget for potential insulation upgrades to improve long‑term running costs and comfort. The plot is small and the overall property size is average, so expect cosy room proportions compared with larger suburban plots.
Location is a core selling point: several nearby stations (Kent House, Clock House, Birkbeck and Beckenham Junction) and tram stops provide straightforward commuting options. Local schools include good and outstanding-rated primaries and secondaries, making this a practical choice for families seeking convenience and connectivity.
4 bedroom semi-detached house for sale in Warren Avenue, Bromley, BR1 — £850,000 • 4 bed • 2 bath • 1568 ft²
3 bedroom detached house for sale in Birkbeck Road, Beckenham, BR3 — £725,000 • 3 bed • 1 bath • 1067 ft²
3 bedroom terraced house for sale in Ravenscroft Road, Beckenham, BR3 — £650,000 • 3 bed • 1 bath • 925 ft²
3 bedroom semi-detached house for sale in Monivea Road, Beckenham, BR3 — £850,000 • 3 bed • 2 bath • 1174 ft²
4 bedroom semi-detached house for sale in Village Way, Beckenham, BR3 — £800,000 • 4 bed • 2 bath • 1597 ft²
2 bedroom semi-detached house for sale in Aviemore Close, Beckenham, BR3 — £525,000 • 2 bed • 1 bath • 803 ft²














































































