Well-located 3-bed home ideal for commuters and low-maintenance family living.
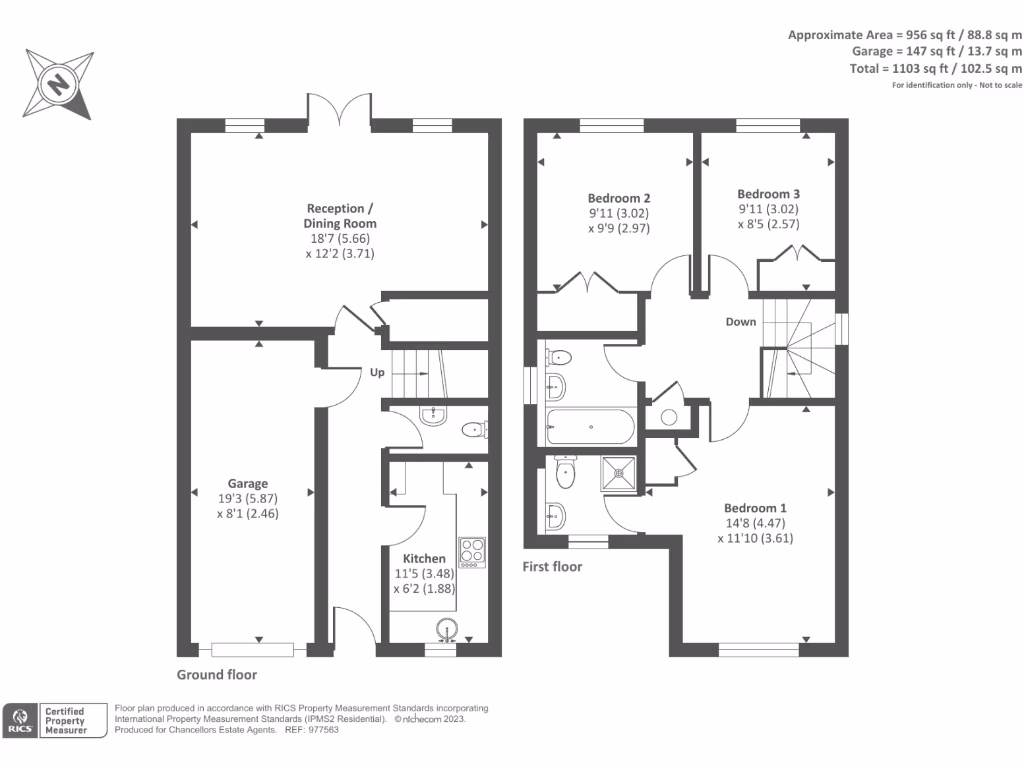
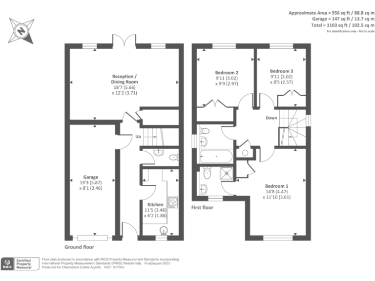
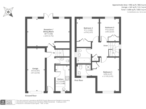
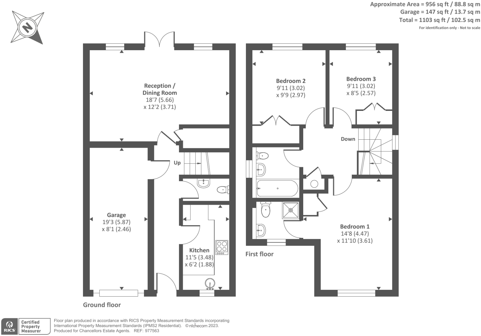
Three bedrooms plus two bathrooms and separate reception room
Private south-facing garden but overall plot is small
Garage and driveway parking included
About 0.5 miles to Virginia Water mainline station (Waterloo services)
Built early 1990s; double glazing fitted after 2002, cavity wall insulation assumed
Mains gas boiler and radiators; fast broadband and excellent mobile signal
Some rooms are compact; not suited to buyers needing large reception space
Freehold tenure; no flood risk and affordable council tax
This three-bedroom detached house in Virginia Water offers practical family living with strong transport links and modern comforts. Set on a small, south-facing plot, the property includes a garage, driveway parking and an economical mains gas boiler with good insulation and double glazing installed after 2002.
The living space is well presented and arranged over multiple storeys, providing separate reception and kitchen areas plus two bathrooms—useful for family routines or sharer occupancy. It sits on a private development about 0.5 miles from Virginia Water station (services to Waterloo), with fast broadband and excellent mobile signal for remote working and commuting.
The neighbourhood is very affluent and populated by highly qualified professionals; wider area data also shows retirement-oriented housing close by, which may shape local amenities and community feel. The house is freehold, constructed in the early 1990s, and council tax levels are described as affordable.
Practical considerations: the plot is small and some bedrooms and rooms are compact, so the garden and external space are limited for larger outdoor needs. Overall the property suits buyers seeking a well-located, low-maintenance family home or an investor targeting strong rental demand in a prosperous commuter town.
3 bedroom end of terrace house for sale in Sandhills Lane, Virginia Water, Surrey, GU25 — £525,000 • 3 bed • 2 bath • 856 ft²
5 bedroom detached house for sale in Luddington Avenue, Virginia Water, Surrey, GU25 — £995,000 • 5 bed • 2 bath • 2000 ft²
3 bedroom detached house for sale in Virginia Water, Surrey, GU25 — £595,000 • 3 bed • 2 bath • 1112 ft²
3 bedroom semi-detached house for sale in Stroude Road, Virginia Water, Surrey, GU25 — £575,000 • 3 bed • 1 bath • 1185 ft²
3 bedroom semi-detached house for sale in The Lane, Virginia Water, Surrey, GU25 — £588,000 • 3 bed • 1 bath • 1116 ft²
3 bedroom semi-detached house for sale in Bourne Road, Virginia Water, Surrey, GU25 — £625,000 • 3 bed • 1 bath • 1311 ft²










































