Spacious family home with large garden and dedicated workspace near station.
Three double bedrooms throughout the house
Recently refurbished with two-storey extension
Modern kitchen with granite worktops and Bosch oven
Large 120ft private garden with home office and patio
Oak flooring and underfloor heating on ground floor
Off-street gated parking for two with EV charging point
Single four-piece bathroom for three bedrooms
Cavity walls appear uninsulated; council tax above average
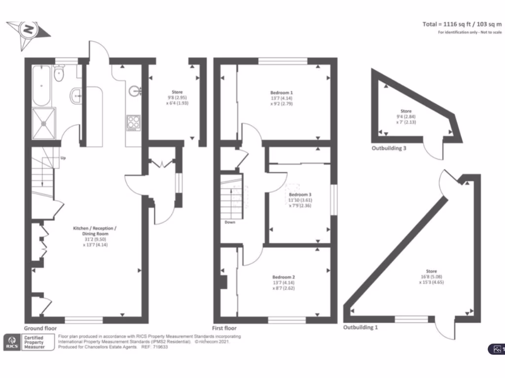
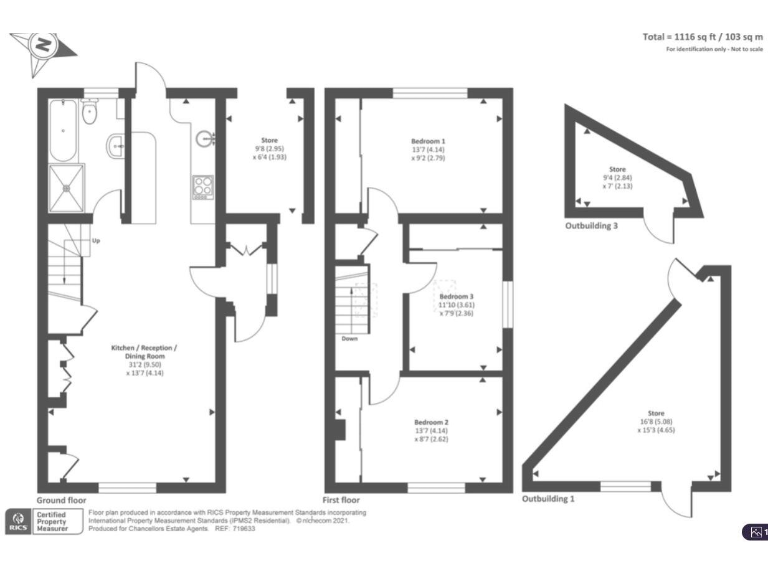
A recently refurbished three-double-bedroom semi-detached home in a quiet cul-de-sac, finished to a high standard and arranged over multiple storeys. The ground floor benefits from oak flooring with underfloor heating, a modern kitchen with granite worktops, and an open-plan living/dining area that flows out to a long, private garden. A dedicated home office in the garden adds flexible workspace away from the main house.
The plot is a standout: roughly 120ft of mostly lawn with a paved patio, established borders, garden power and lighting, plus side storage. Off-street gated parking for two cars is provided on a block-paved area with an electric charging point. The property sits close to Virginia Water train station and local shops, and nearby schools rated Good make it practical for family life and commuting.
Practical points to note: there is one four-piece bathroom serving three double bedrooms, and the property’s cavity walls are recorded as built without insulation (assumed). Council tax is above average for the area. The house dates from the early 20th century and, while newly renovated with double glazing and modern heating, there may be improvement opportunities (for example wall insulation or additional bathrooms) for buyers seeking to boost comfort or value.
Overall this home blends period bones with contemporary finishes, generous outside space and useful parking — appealing for families seeking a ready-to-move-in house with room for home working and future enhancements.
3 bedroom semi-detached house for sale in Bourne Road, Virginia Water, Surrey, GU25 — £625,000 • 3 bed • 1 bath • 1311 ft²
3 bedroom semi-detached house for sale in Stroude Road, Virginia Water, Surrey, GU25 — £575,000 • 3 bed • 1 bath • 1185 ft²
3 bedroom semi-detached house for sale in Stroude Road, Virginia Water, Surrey, GU25 — £575,000 • 3 bed • 1 bath • 912 ft²
3 bedroom semi-detached house for sale in Virginia Water, Surrey, GU25 — £725,000 • 3 bed • 1 bath • 1400 ft²
4 bedroom semi-detached house for sale in Cabrera Close, Virginia Water, Surrey, GU25 — £725,000 • 4 bed • 3 bath • 1665 ft²
3 bedroom end of terrace house for sale in Sandhills Lane, Virginia Water, Surrey, GU25 — £525,000 • 3 bed • 2 bath • 856 ft²


















































































































































