Well‑located family home with large garden and flexible living spaces.
Large 2,171 sq ft family home across three floors
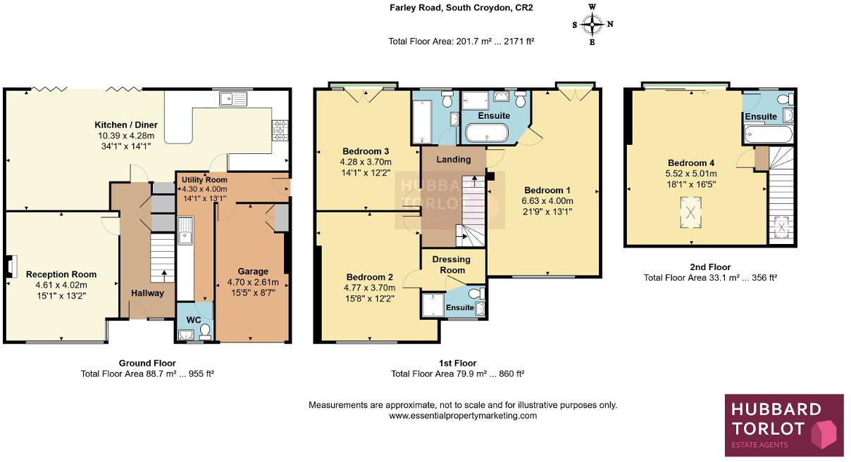
This substantial semi‑detached home in South Croydon offers generous, family-focused accommodation across three floors, with 2,171 sq ft of living space and a large private plot. The ground floor’s open-plan kitchen/diner with bi-fold doors flows directly to a south-facing garden with decking and a wooden gazebo — ideal for entertaining and children at play. A separate reception room, utility and ground-floor cloakroom add everyday convenience.
Upstairs are three double bedrooms on the first floor — two with en suites — and a large principal suite on the second floor with a Juliet balcony and en suite shower. The layout suits a growing family wanting flexible bedroom and study space, or multigenerational living. Excellent local schools, multiple rail links and good road access make the location strong for family life.
Practical points are clear and straightforward: the property is freehold, gas‑fired central heating with boiler and radiators, double glazing (install date unknown), garage and gated off‑street parking for several cars. Council Tax is above average (Band E).
A few matters for buyers to note: the property’s cavity walls are assumed uninsulated, which may mean higher heating costs or desire for insulation works. Records given show inconsistent bathroom counts; the detailed description states three en suites plus a family bathroom, but a single ‘Bathrooms’ figure appears elsewhere — this should be clarified. Overall this is a large, well‑proportioned family home with strong entertainment spaces and scope for energy‑efficiency improvements.
4 bedroom detached house for sale in Whitgift Avenue, South Croydon, CR2 — £999,000 • 4 bed • 4 bath • 2044 ft²
4 bedroom semi-detached house for sale in Farley Road, South Croydon, CR2 — £750,000 • 4 bed • 1 bath • 2640 ft²
5 bedroom detached house for sale in Crozier Drive, South Croydon, CR2 — £950,000 • 5 bed • 3 bath • 1948 ft²
4 bedroom detached house for sale in Chestnut Grove, South Croydon, CR2 7LH, CR2 — £780,000 • 4 bed • 1 bath • 1679 ft²
4 bedroom detached house for sale in Beechwood Road, South Croydon, CR2 — £1,000,000 • 4 bed • 3 bath • 2000 ft²
3 bedroom detached house for sale in Beech Avenue, South Croydon, CR2 0, CR2 — £850,000 • 3 bed • 1 bath • 2417 ft²


















































































