Contemporary family home with upgrades and a sunny garden ready to move into.
Receive £21,250 towards your deposit on purchase
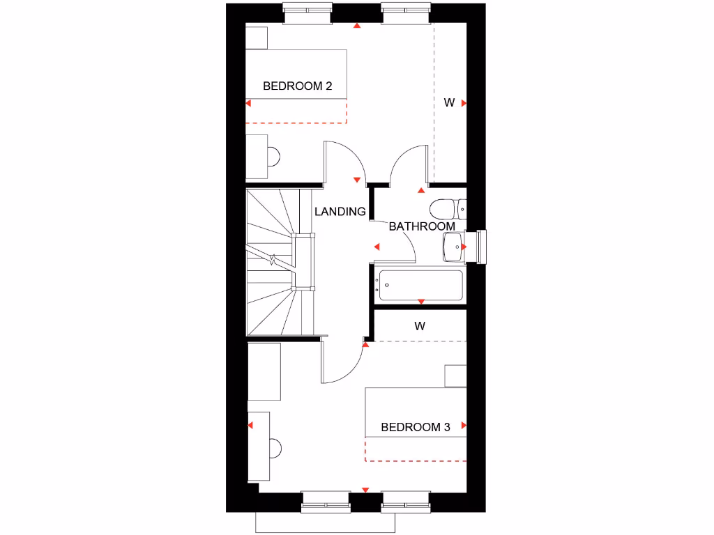
Step inside this contemporary three-bedroom semi with a bright open-plan living/dining room and French doors leading to a south-facing garden. The upgraded kitchen and new flooring are included, so the home is move-in ready for families who want modern finishes without immediate work. The main bedroom occupies the top floor, offering a dressing area and en suite for privacy and flexible family arrangements.
Practical extras suit everyday life: two off-street parking spaces, an EV charging point, and a downstairs cloakroom. The plot is described as very large, giving plenty of outdoor space for children’s play or future landscaping. There’s no flood risk and the property is newly built, reducing short-term maintenance needs.
Notable constraints are straightforward: broadband speeds are reported as slow, which may affect home working or streaming plans. Tenure details are not provided and should be confirmed before exchange. Internally the house is an average overall size for the layout, and while there are three double bedrooms, the family bathroom is single — a typical arrangement but worth noting for busy morning routines.
Overall this home will suit families seeking contemporary, low-maintenance living near good local schools and leisure amenities, with the practical benefit of a substantial deposit contribution to help with purchase costs.
3 bedroom terraced house for sale in Golfers Lane,
Angmering,
Littlehampton,
BN16 — £447,500 • 3 bed • 1 bath • 852 ft²
3 bedroom semi-detached house for sale in Golfers Lane,
Angmering,
Littlehampton,
BN16 — £407,500 • 3 bed • 1 bath • 700 ft²
4 bedroom semi-detached house for sale in Golfers Lane,
Angmering,
West sussex,
BN16 4NB, BN16 — £497,500 • 4 bed • 1 bath • 1060 ft²
4 bedroom detached house for sale in Golfers Lane,
Angmering,
West sussex,
BN16 4NB, BN16 — £570,000 • 4 bed • 1 bath • 1134 ft²
3 bedroom end of terrace house for sale in Golfers Lane,
Angmering,
Littlehampton,
BN16 — £402,500 • 3 bed • 1 bath • 700 ft²
3 bedroom detached house for sale in Golfers Lane,
Angmering,
West sussex,
BN16 4NB, BN16 — £435,000 • 3 bed • 1 bath • 723 ft²






























































