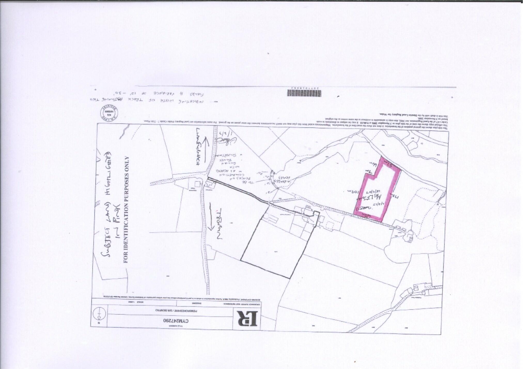
**Standout Features:**
- Expansive 2.25 acres of sloping pasture land, ring-fenced
- Off-street hardcore base parking with easy access to the field
- Natural water resources and a small stream on the property
- Primed for equestrian use, small-scale livestock grazing, or potential tree planting
**Summary:**
Discover a rare opportunity at this spacious 2.25-acre plot of pastureland nestled in a tranquil rural setting just outside Tegryn. Ideal for first-time land buyers or investors looking to expand their portfolio, this property features a sloping landscape, well-suited for equestrian activities or sheep grazing. A reliable hardcore base parking area provides easy access off a private track, leading directly to the parcel.
The land is in excellent condition, capable of supporting all-year grass growth, and comes with natural water resources for additional versatility. While it currently lacks IACS registration for environmental projects, it boasts a serene stream enhancing its natural charm. Though broadband speeds may be slow and the area is classified as deprived, the peaceful countryside offers an idyllic escape and great potential to cultivate your agricultural dreams. There are also rights of way and essential utilities available, making this an exciting prospect for your future endeavors.
Do not miss this chance to invest in a slice of serene rural life; opportunities like this are rare and may not last long!
Land for sale in Tegryn, Llanfyrnach, SA35 — £175,000 • 1 bed • 1 bath
Land for sale in Near Llwynhwrdd Farm, Tegryn, Llanfyrnach, SA35 — £80,000 • 1 bed • 1 bath
Land for sale in Llangoedmor, SA43 — £110,000 • 1 bed • 1 bath
Land for sale in Land For Sale, Llanycefn, clynderwen, SA66 7LN, SA66 — £42,000 • 1 bed • 1 bath
Land for sale in Crymych, SA41 — £100,000 • 1 bed • 1 bath
Land for sale in Brongest, Newcastle Emlyn, SA38 — £300,000 • 1 bed • 1 bath














