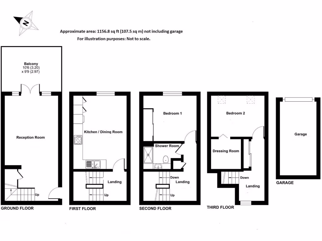
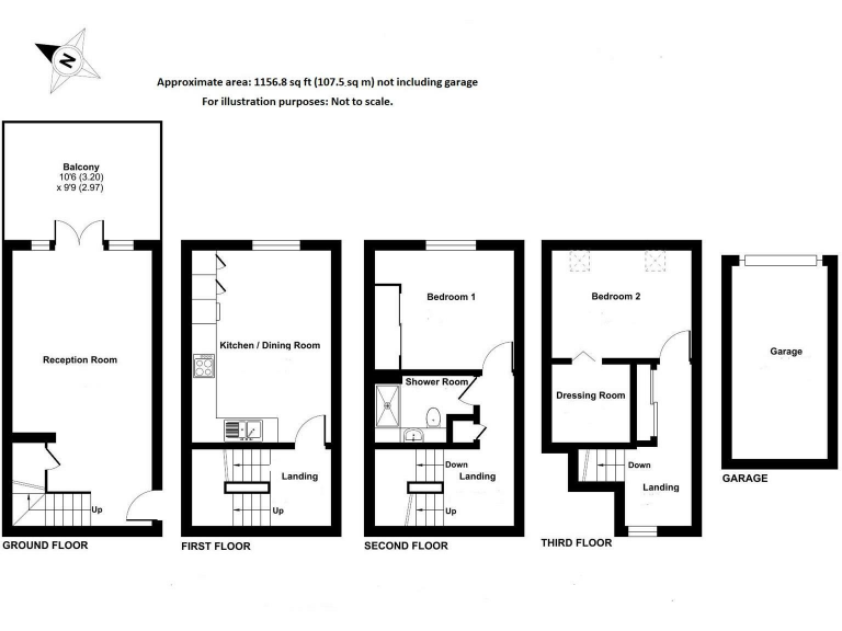
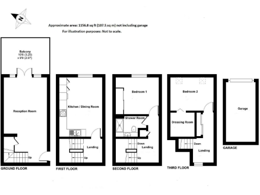
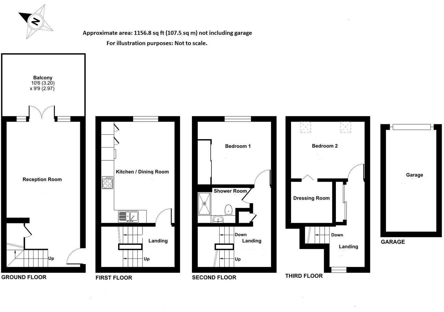
**Standout Features:**
- Stunning Grade II Listed mill conversion
- Scenic river views from all aspects
- Private balcony off the living room
- Spacious garage and access to communal gardens
- Generous living spaces spread across four floors
- Close proximity to amenities and main-line station
- Renovation potential with a dressing room convertible to a third bedroom
**Concise Summary:**
Discover a unique opportunity to own a beautifully presented home within this exceptional Grade II Listed mill conversion, offering breathtaking river views. This stylish property spans four levels, boasting a large living room that opens onto a private balcony overlooking the tranquil mill stream, creating an idyllic spot for relaxation and al-fresco dining. The first floor features a modern kitchen/dining room, ideal for entertaining, while the upper floors host two generous double bedrooms—one with a spacious dressing room that could easily be converted back to a third bedroom.
Nestled amidst scenic countryside walks, you are just a short stroll from village amenities and Roydon main-line station, making it a perfect retreat for both families and professionals. With a sizeable garage and communal gardens, this property combines comfort with a touch of elegance. While it offers ample living space, note that the ongoing service charge and listed status may present considerations for maintenance and future modifications. Don't miss the chance to own a distinctive piece of history in a growing community. Act quickly to secure this rare gem!
2 bedroom flat for sale in Roydon Mill, Roydon, CM19 — £259,995 • 2 bed • 1 bath • 538 ft²
2 bedroom town house for sale in The Millhouse, Roydon Mill, Roydon, CM19 — £465,000 • 2 bed • 1 bath • 1138 ft²
2 bedroom maisonette for sale in Roydon Mill, Roydon, CM19 — £275,000 • 2 bed • 1 bath • 593 ft²
4 bedroom town house for sale in CHAIN FREE - High Street, Roydon, Essex, CM19 — £499,995 • 4 bed • 1 bath • 1117 ft²
3 bedroom detached house for sale in Riverside House, Roydon, CM19 — £825,000 • 3 bed • 2 bath • 1344 ft²
2 bedroom apartment for sale in CHAIN FREE - Kents Lane, Standon, Herts, SG11 — £399,950 • 2 bed • 2 bath • 921 ft²














































































































































