**Standout Features:**
- Grade II listed mill conversion
- Private terrace with stunning river views
- Two spacious double bedrooms
- Close proximity to Roydon Station
- Communal gardens and garage
- Ideal for nature lovers and those seeking tranquility
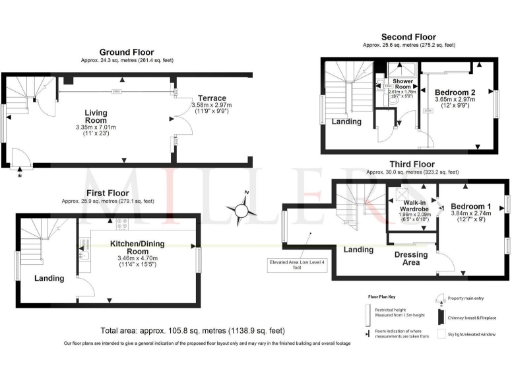
Nestled in the picturesque village of Roydon, The Millhouse offers a rare opportunity to own a tastefully converted Grade II listed townhouse that seamlessly blends historical charm with modern living. Spanning 1,138 square feet across four floors, this unique property features a spacious lounge with access to a private terrace, perfect for sipping morning coffee while enjoying mesmerizing views of the river. The first floor boasts a contemporary kitchen and dining area, designed for entertaining.
Upstairs, you'll find two generously sized double bedrooms, including a primary bedroom with a walk-in wardrobe, adding flexibility for storage or a possible home office. Although the property retains its character, some might consider its high maintenance due to the absence of insulation and reliance on electric heating.
Residents can unwind in the communal gardens and benefit from the added convenience of a garage. With nearby amenities including Roydon Marina Village, village shops, and easy access to the mainline station, your essential needs are well-catered for. This enchanting mill conversion offers a tranquil retreat with scenic countryside walks right at your doorstep, making it a perfect choice for families, investors, or anyone looking to indulge in serene village life. Don’t miss the chance to make this exceptional property your own—opportunities like this don’t last long!
2 bedroom town house for sale in The Mill House, Roydon, CM19 — £465,000 • 2 bed • 1 bath • 1156 ft²
2 bedroom flat for sale in Roydon Mill, Roydon, CM19 — £259,995 • 2 bed • 1 bath • 538 ft²
2 bedroom maisonette for sale in Roydon Mill, Roydon, CM19 — £275,000 • 2 bed • 1 bath • 593 ft²
7 bedroom detached house for sale in Widford Road, Much Hadham, SG10 — £2,000,000 • 7 bed • 5 bath • 8200 ft²
2 bedroom terraced house for sale in Millstream Close, Hertford, SG14 — £390,000 • 2 bed • 1 bath • 573 ft²
3 bedroom apartment for sale in Old Road, Old Harlow, CM17 — £385,000 • 3 bed • 1 bath • 1067 ft²






























































































































