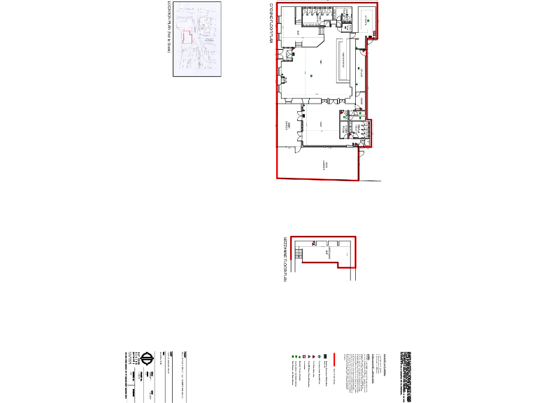
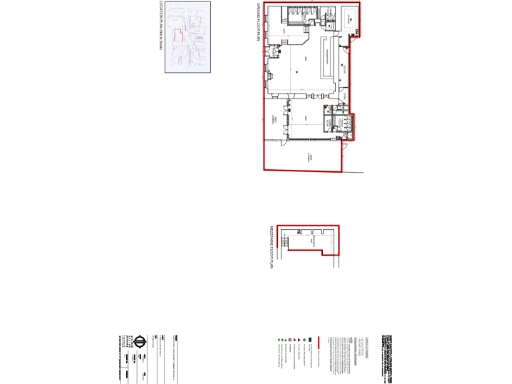
**Key Features:**
- Prime redevelopment opportunity in town center location
- Historic three-storey Victorian building, constructed in 1888
- Formerly The Clipper public house, currently vacant
- Detached structure with stone façade and modern conservatory extension
- Total space of approximately 9,900 square feet
- Excellent mobile signal and fast broadband speeds
- Planning permission for alternative use development subject to approval
- External beer garden available
Located on bustling High Street in Dumbarton, this expansive commercial development at 3 High Street offers a unique investment opportunity steeped in history. Once a licensed public house, The Clipper, the three-storey Victorian building showcases beautiful stone architecture and includes a contemporary conservatory extension, perfect for creating a vibrant urban space. With a generous 9,900 square feet of space awaiting your vision, this property is in shell condition, ready for transformation into offices, serviced apartments, or a trendy bar/restaurant—subject to relevant planning permissions.
The ground level boasts impressive double-height ceilings and exposed steel columns, creating a striking ambiance. The upper levels, though in basic condition, provide significant potential for further development with new access solutions. Positioned in a mixed-use neighborhood with a wealth of amenities nearby, this location combines historical charm with modern convenience, making it an attractive proposition for investors looking to capitalize on the area’s growing demand.
Don’t miss out on the chance to breathe new life into a piece of local heritage. Seize this exclusive opportunity today before it slips away!
Office for sale in 4-14 Bridge Street, Dumbarton, G82 — £500,000 • 1 bed • 1 bath • 22263 ft²
Storage facility for sale in West Stewart Street, Greenock, Inverclyde, PA15 — £1,200,000 • 1 bed • 1 bath • 12304 ft²
High street retail property for sale in 39-41 High Street, Dumbarton, Dunbartonshire, G82 — £250,000 • 1 bed • 1 bath • 2156 ft²
Leisure facility for sale in The Court Bar, 7 St. James Street, Paisley, PA3 2HL, PA3 — £135,000 • 1 bed • 1 bath • 3627 ft²
Office for sale in Wellmeadow Street, Renfrewshire, PA1 — £130,000 • 1 bed • 1 bath • 1000 ft²
1 bedroom flat for sale in Houston Street, Greenock, PA16 — £40,000 • 1 bed • 1 bath • 351 ft²


































