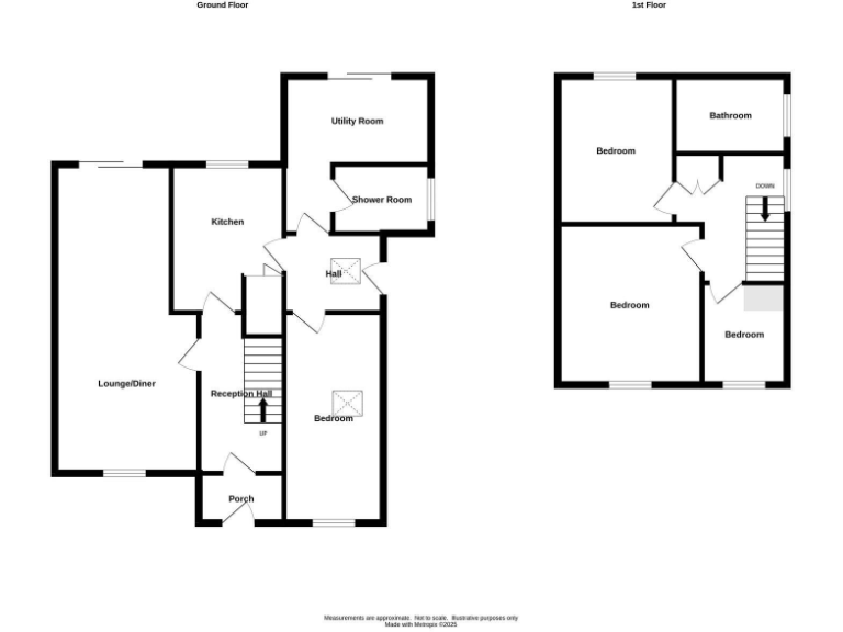
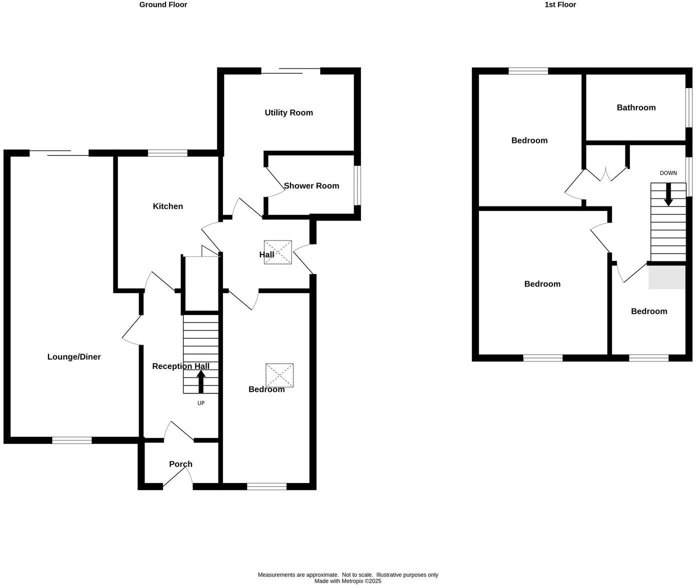
Versatile four-bed with separate annex and large driveway for growing households.
No upward chain, ready for quick move
This extended four-bedroom semi-detached house sits at the head of a quiet cul-de-sac and is offered with no upward chain — ideal for growing families or enterprising first-time buyers. The layout includes a wide dual-aspect lounge with dining area and a flexible ground-floor bedroom/annexe space that can operate independently, accessed either internally or externally.
Practical features include gas central heating, double glazing, a modern ground-floor shower room and a four-piece first-floor bathroom. The plot is a standout: an extensive driveway for up to four cars and a secluded rear garden with external electric points. Local amenities are within walking distance, including Stevens Park, Merry Hill shopping, and several well-rated primary schools.
The property is well proportioned but does show signs that would benefit from updating — the kitchen is dated and lighting is poor, and purchasers should commission their own survey to check standard construction elements. EPC C and all main services are connected. Overall this is a versatile home with immediate move-in potential and scope to add value through targeted improvements.
3 bedroom semi-detached house for sale in Andrews Close, Brierley Hill, DY5 2XB, DY5 — £249,950 • 3 bed • 1 bath • 721 ft²
4 bedroom semi-detached house for sale in Wychbury Road, Brierley Hill, DY5 2XU, DY5 — £265,000 • 4 bed • 1 bath • 766 ft²
4 bedroom semi-detached house for sale in Mousehall Farm Road, Brierley Hill, DY5 — £287,500 • 4 bed • 2 bath • 1152 ft²
4 bedroom detached house for sale in Sandringham Way, Amblecote / Withymoor Village, Brierley Hill, DY5 3JR, DY5 — £359,950 • 4 bed • 1 bath • 1184 ft²
3 bedroom semi-detached house for sale in WORDSLEY, Friars Close, DY8 — £295,000 • 3 bed • 1 bath • 840 ft²
3 bedroom semi-detached house for sale in Commonside, Pensnett, Brierley Hill, DY5 — £259,950 • 3 bed • 1 bath • 824 ft²














































































































