Large garden and driveway; ideal for growing families near good schools.
No upward chain — available immediately
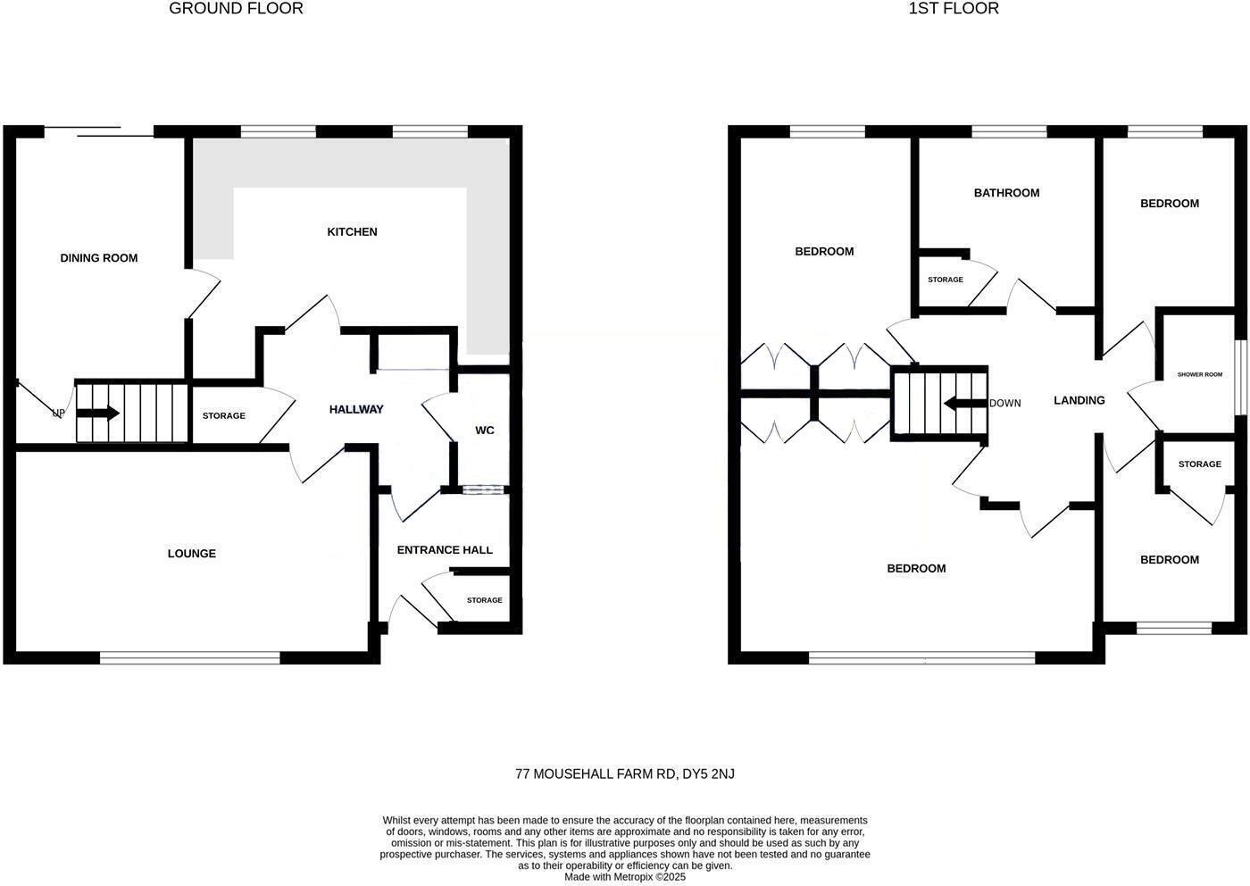
A roomy four-bedroom semi-detached house with a two-storey extension, offered with no upward chain and plenty of family space. The property sits in a comfortable suburban pocket close to good primary schools and local amenities, with a large driveway for several cars and a generous private rear garden with patio, pagoda and a useful powered store/workshop.
Ground floor living is flexible: a spacious lounge, separate dining room and a modern fitted kitchen provide practical everyday space, while a downstairs WC adds convenience. Upstairs are four bedrooms served by a modern family bathroom plus a separate shower room — useful for busy mornings. Double glazing and gas central heating are already fitted.
Built in the late 1960s/early 1970s, the house is in solid order but reflects its era; buyers may wish to make cosmetic updates or energy-efficiency improvements (current EPC C). The sizeable plot and extension give scope for internal reconfiguration or further improvement subject to planning, making the home suitable for growing families or buyers looking for refurbishment potential.
Practical positives include freehold tenure, very low local crime, fast broadband and excellent mobile signal. Note the property is council tax band B and in a generally affluent area; a viewing is recommended to appreciate the scale and layout in person.
4 bedroom semi-detached house for sale in Brandon Way, Quarry Bank, Brierley Hill, DY5 2JX, DY5 — £280,000 • 4 bed • 2 bath • 1002 ft²
4 bedroom semi-detached house for sale in Wychbury Road, Brierley Hill, DY5 2XU, DY5 — £265,000 • 4 bed • 1 bath • 766 ft²
4 bedroom detached house for sale in Sandringham Way, Amblecote / Withymoor Village, Brierley Hill, DY5 3JR, DY5 — £359,950 • 4 bed • 1 bath • 1184 ft²
4 bedroom detached house for sale in MARTINDALE WALK, Brierley Hill, DY5 2RX, DY5 — £365,000 • 4 bed • 1 bath • 1131 ft²
4 bedroom detached house for sale in Quincy Rise, Brierley Hill, DY5 — £400,000 • 4 bed • 2 bath • 1103 ft²
3 bedroom semi-detached house for sale in Perivale Way, Stourbridge, DY8 4ND, DY8 — £260,000 • 3 bed • 2 bath • 1023 ft²














































































































