Spacious family layout with garden and office space ready for modernisation.
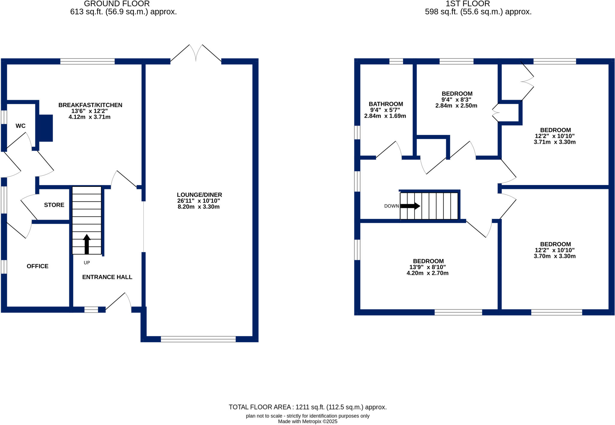
Chain-free four-bedroom semi-detached brick house
Chain-free and brick-built, this four-bedroom semi offers a practical family layout across two floors with an office and guest WC. Large windows and French doors bring good natural light into the contemporary living room, while triple glazing and a mains-gas boiler provide sensible thermal performance. The plot is a decent size with a private garden ideal for children or gardening projects.
The house dates from the mid-20th century and sits in a neighbourhood with good local schools and fast broadband — useful for families and home workers. Internal accommodation is average-sized (approximately 1,211 sq ft) with one family bathroom; room distribution suits a growing family but some updating will improve comfort and value.
Buyers should note the property is in an area classed as very deprived with higher local crime rates; the front garden requires work and the property shows signs of being dated in parts. There is clear renovation potential for someone looking to add value and tailor the home to modern tastes. Freehold tenure and chain-free sale simplify the purchase process.
3 bedroom semi-detached house for sale in Brooklands Avenue, Leeds, West Yorkshire, LS14 — £200,000 • 3 bed • 1 bath • 892 ft²
3 bedroom semi-detached house for sale in Gipton Wood Road, Leeds, LS8 — £250,000 • 3 bed • 1 bath • 852 ft²
4 bedroom semi-detached house for sale in Selby Road, Leeds, West Yorkshire, LS15 — £395,000 • 4 bed • 1 bath • 1820 ft²
4 bedroom semi-detached house for sale in Wensley Drive, Leeds, West Yorkshire, LS7 — £480,000 • 4 bed • 2 bath • 1567 ft²
4 bedroom semi-detached house for sale in Westfield Avenue, Armley, LS12 — £365,000 • 4 bed • 1 bath • 1193 ft²
4 bedroom detached house for sale in Spen Lane, Leeds, West Yorkshire, LS16 — £710,000 • 4 bed • 4 bath • 2581 ft²






















































