**Standout Features:**
- Charming top-floor conversion apartment near Guildford town centre
- Sun-drenched open-plan living/dining room with striking exposed beams
- Modern kitchen with plenty of storage and contemporary finishes
- Two spacious double bedrooms with built-in storage
- Allocated off-street parking and additional outdoor shed for storage
- Located across from Stoke Park with excellent views
- Share of freehold tenure
**Concerns:**
- Older building constructed before 1900 may involve maintenance needs
- Moderate crime rate in the area
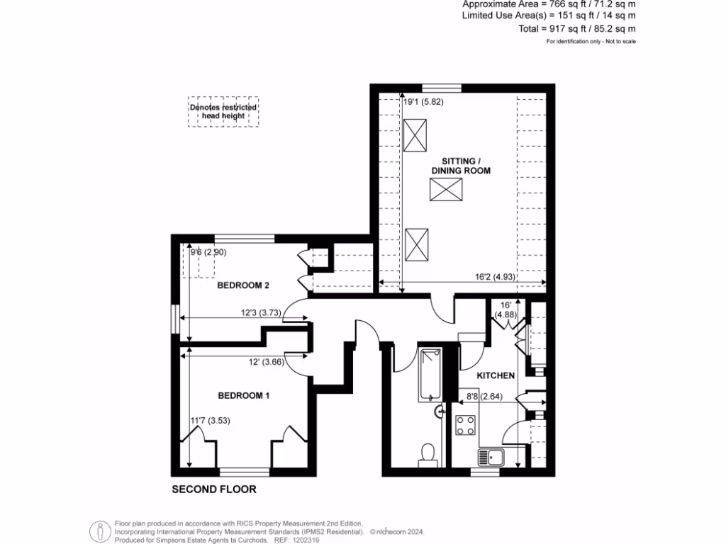
Embrace the charm of this delightful two-bedroom top-floor conversion apartment, perfectly positioned close to Guildford town centre and across from the scenic Stoke Park. The sunlit open-plan living and dining area, accentuated with beautiful exposed beams, creates a warm atmosphere ideal for entertaining or unwinding. Enjoy the modern kitchen with ample storage, alongside two bright and generously sized double bedrooms that promise comfort and style.
This property also offers the added convenience of allocated parking and an outdoor shed for extra storage needs. With excellent transport links and a location in a well-regarded area, it’s perfect for couples, small families, or even investors seeking rental potential in a vibrant neighborhood. Don’t miss out on this rare opportunity—the blend of historic character and modern living can be yours!
2 bedroom flat for sale in Warren Road, Guildford, GU1 — £350,000 • 2 bed • 1 bath • 754 ft²
2 bedroom flat for sale in Cranley Road, Guildford, Surrey, GU1 — £385,000 • 2 bed • 1 bath • 625 ft²
2 bedroom flat for sale in Grosvenor Court, Burpham, GU4 — £280,000 • 2 bed • 1 bath • 720 ft²
2 bedroom flat for sale in Tyrells Place, Guildford, Surrey, GU1 — £425,000 • 2 bed • 1 bath • 861 ft²
2 bedroom apartment for sale in Elgin Gardens, Guildford, Surrey, GU1 — £275,000 • 2 bed • 1 bath • 775 ft²
2 bedroom apartment for sale in London Road, Guildford, GU1 — £550,000 • 2 bed • 2 bath • 1040 ft²






















































































































