Spacious three-bed semi with large gardens and strong renovation potential.
Three bedrooms and one bathroom, traditional semi layout
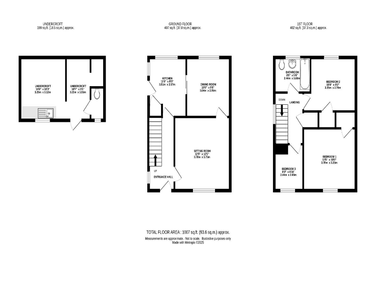
A traditional three-bedroom semi-detached house in a quiet cul‑de‑sac, offering generous gardens and clear scope to personalise. The layout includes two reception rooms, a fitted kitchen and a useful undercroft currently used as laundry/workshop. Distant valley views can be enjoyed from the dining room and rear garden.
This property requires modernisation throughout, making it a suitable project for a family seeking extra space or an investor wanting to add value. There is potential to extend into the undercroft and create off‑street parking, though any works would need the necessary planning and building regulation approvals.
Set close to Whaley Bridge town centre with good local schools, commuter links by train and bus, and nearby countryside walks, the house combines convenience with semi-rural appeal. Note this is a probate sale and broadband speeds in the area are slow — important practical points for buyers to consider.
3 bedroom semi-detached house for sale in Jodrell Meadow, Whaley Bridge, High Peak, SK23 — £285,000 • 3 bed • 1 bath • 1142 ft²
3 bedroom semi-detached house for sale in Orchard Avenue, Whaley Bridge, High Peak, SK23 — £230,000 • 3 bed • 1 bath • 990 ft²
3 bedroom semi-detached house for sale in Reddish Avenue, Whaley Bridge, High Peak, SK23 — £239,000 • 3 bed • 1 bath • 871 ft²
3 bedroom semi-detached house for sale in Taxal Mews, Macclesfield Road, Whaley Bridge, High Peak, SK23 — £247,000 • 3 bed • 2 bath • 761 ft²
3 bedroom semi-detached house for sale in Ashfield Road, Chapel-En-Le-Frith, SK23 — £269,500 • 3 bed • 1 bath • 926 ft²
3 bedroom semi-detached house for sale in Reddish Avenue, Whaley Bridge, High Peak, SK23 — £375,000 • 3 bed • 2 bath • 1074 ft²










































































