Cul-de-sac three-bed with mature gardens, workshop and storage space.
Quiet cul-de-sac location close to town amenities and rail links
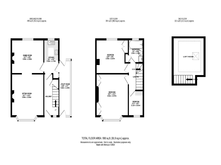
Three bedrooms plus part-converted loft; potential for extra space
Enclosed front and rear gardens with distant views and decent plot
Large workshop shed and external undercroft storage included
Bright reception rooms; dining room opens into sitting room
EPC rating E; energy-efficiency and insulation upgrades likely needed
Cavity walls assumed without insulation (mid-20th-century build)
Average broadband speeds; council tax band affordable
Set within a quiet cul-de-sac close to Whaley Bridge town centre, this traditional semi-detached house offers comfortable family accommodation over two main floors plus a part-converted loft. The reception rooms are bright and flow well, with a dining room opening into the sitting room and a fitted kitchen that benefits from modern touches. Outside there are well-established, enclosed gardens to the front and rear, a large workshop shed and undercroft storage.
The layout comprises two double bedrooms, a smaller single bedroom and a shower room on the first floor, with additional loft space offering potential for further accommodation subject to the usual consents. The property is freehold, around 990 sq ft internally and sits on a decent plot with distant views from the garden.
Practical points to note: the property dates from the mid-20th century and has cavity walls assumed to lack insulation, an EPC rating of E and average broadband speeds. These factors mean energy-efficiency improvements and insulation upgrades would be advisable and could add value. Overall this is a solid family home in a very affluent, low-crime area with good local schools and rail links.
3 bedroom semi-detached house for sale in Orchard Avenue, Whaley Bridge, High Peak, SK23 — £230,000 • 3 bed • 1 bath • 950 ft²
3 bedroom terraced house for sale in Orchard Avenue, Whaley Bridge, High Peak, SK23 — £239,995 • 3 bed • 1 bath • 839 ft²
3 bedroom semi-detached house for sale in Williamson Crescent, Whaley Bridge, High Peak, SK23 — £250,000 • 3 bed • 1 bath • 1008 ft²
3 bedroom semi-detached house for sale in Taxal Mews, Macclesfield Road, Whaley Bridge, High Peak, SK23 — £247,000 • 3 bed • 2 bath • 761 ft²
3 bedroom semi-detached house for sale in Orchard Avenue, Whaley Bridge, High Peak, SK23 — £325,000 • 3 bed • 1 bath • 753 ft²
2 bedroom semi-detached house for sale in Macclesfield Road, Whaley Bridge, High Peak, SK23 — £238,000 • 2 bed • 1 bath • 679 ft²






























































