Character-filled two-bedroom cottage with garden and no onward chain.
Pretty Victorian semi-detached cottage in central Kibworth location
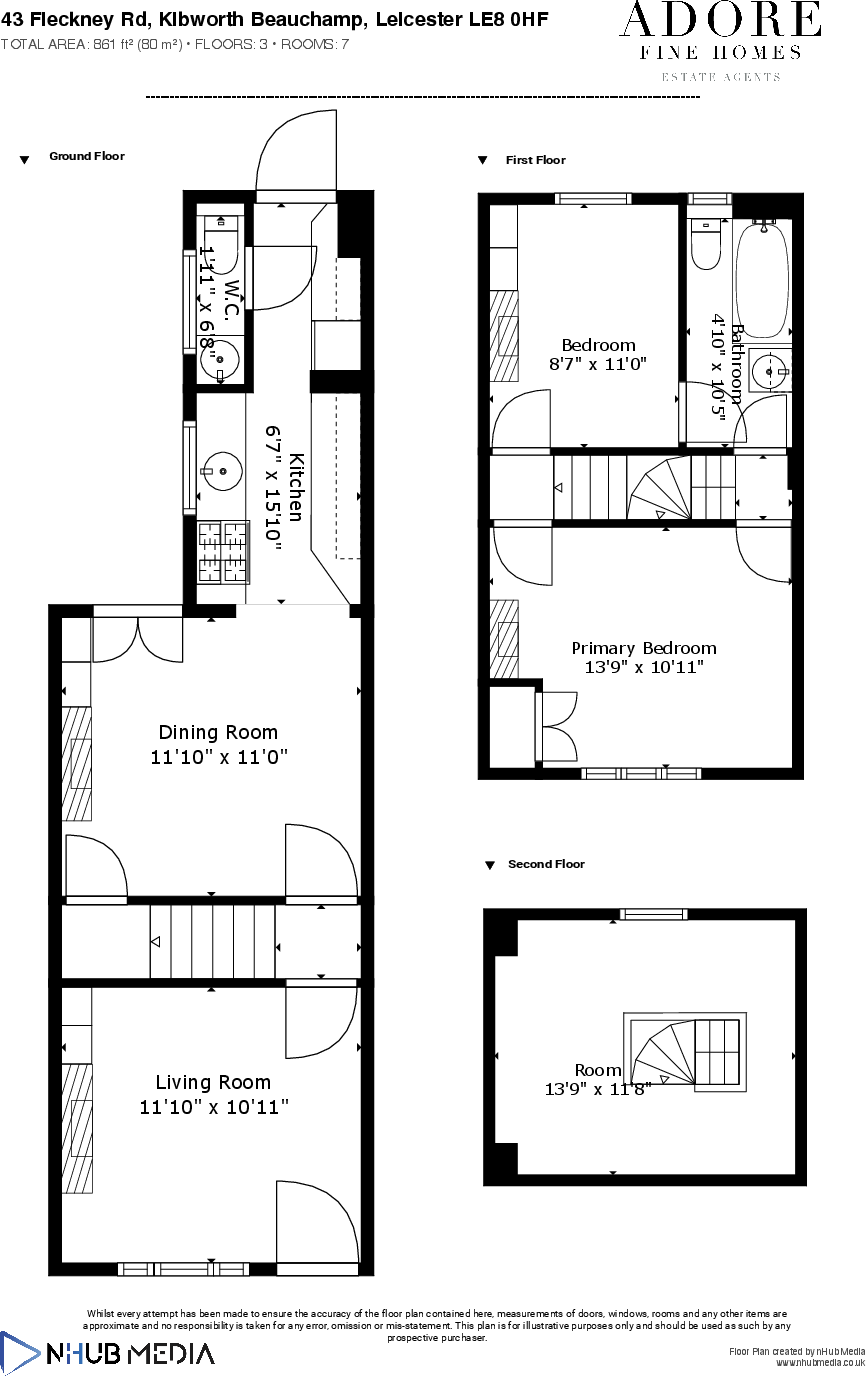
A pretty Victorian semi-detached cottage in the heart of Kibworth, this two-bedroom home offers character features and village convenience. The property has separate lounge and dining rooms with original fireplaces, an extended kitchen with utility and a handy downstairs cloakroom. A useful loft conversion provides occasional third-room space, while the recently replaced central heating boiler reduces immediate mechanical concerns.
Situated close to outstanding and well-regarded schools, local shops, parks and regular transport links, the house suits a small family or a buyer seeking village life with good commuter access to Leicester and Market Harborough. The rear garden is a generous, mainly lawned space with a raised deck ideal for children or outdoor entertaining; gated side access makes bin and bike storage straightforward.
The cottage is offered chain free and is freehold, presenting clear purchase potential. That said, the interior requires some redecoration and general updating; the loft room is reached by a compact “paddle” staircase and is best described as occasional accommodation rather than a full third bedroom. The plot is modest in size and the property will suit buyers looking to improve and personalise rather than those seeking turnkey modern living.
Overall this period cottage delivers charm, good village location and scope to add value with sympathetic refurbishment. It will work well for families wanting proximity to strong schools, buyers looking for a characterful commuter base, or investors prepared to upgrade the interior.
3 bedroom cottage for sale in Paget Street, Kibworth , LE8 — £275,000 • 3 bed • 1 bath • 924 ft²
3 bedroom cottage for sale in Main Street, Kibworth Harcourt, LE8 — £465,000 • 3 bed • 2 bath • 1573 ft²
3 bedroom cottage for sale in Kimberley Street, Kibworth, Leicester, LE8 — £395,000 • 3 bed • 1 bath • 1023 ft²
2 bedroom cottage for sale in Smeeton Road, Kibworth Beauchamp, LE8 — £215,000 • 2 bed • 1 bath • 614 ft²
3 bedroom terraced house for sale in Harcourt Road, Kibworth Beauchamp, LE8 — £280,000 • 3 bed • 1 bath • 837 ft²
3 bedroom cottage for sale in Main Street, Kibworth Harcourt, LE8 — £475,000 • 3 bed • 2 bath • 1750 ft²










































































