Bright family home with driveway, conservatory and garden, close to shops and schools.
Three bedrooms including two doubles and smaller third room
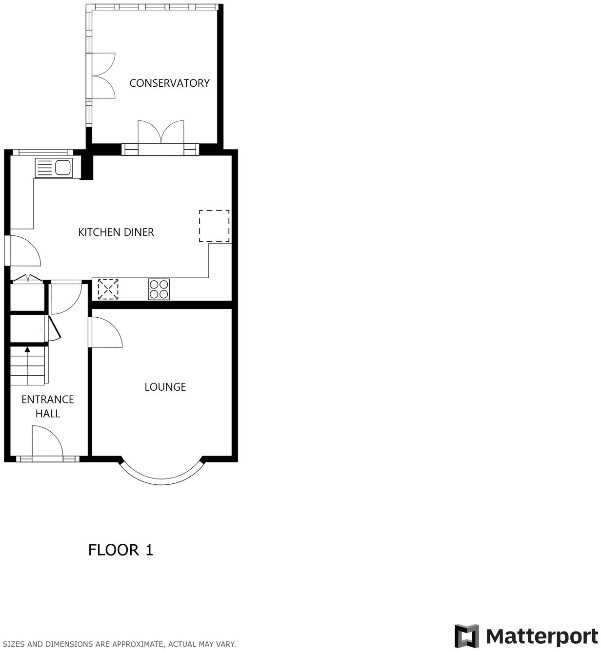
A bright three-bedroom semi-detached home on Aylestone Lane, offering practical family living with a modern feel throughout. The lounge with bay window and adjoining conservatory create flexible living space, while the kitchen-diner provides a useful hub for daily life and family meals. A driveway to the front and a paved/lawn rear garden add useful outdoor space and off-street parking.
Built in the 1930s, the property benefits from double glazing and mains gas central heating, and is freehold with a modest council tax band. Local amenities are close by — supermarkets, bus routes to Leicester city centre, playgrounds and several good primary and secondary schools are within easy reach, making this well-suited to families and professionals.
Buyers should note some practical limitations: the house has a single shower room only, solid brick walls that likely lack cavity insulation, and double glazing fitted before 2002. The EPC is D, so upgrading insulation or windows would improve efficiency and comfort. Overall room sizes are moderate, so the home suits small to mid-size families or buyers wanting a manageable, well-located property with scope to improve.
3 bedroom semi-detached house for sale in Wigston Lane, Aylestone, Leicester, LE2 — £260,000 • 3 bed • 1 bath • 1077 ft²
3 bedroom semi-detached house for sale in Wigston Lane, Aylestone, LE2 — £318,000 • 3 bed • 1 bath • 873 ft²
3 bedroom semi-detached house for sale in Wigston Lane, Aylestone, Leicester, Leicestershire, LE2 — £220,000 • 3 bed • 1 bath
3 bedroom terraced house for sale in Winders Way, Aylestone, LE2 — £260,000 • 3 bed • 1 bath • 1195 ft²
3 bedroom semi-detached house for sale in Seaton Road, Wigston, LE18 — £295,000 • 3 bed • 1 bath • 829 ft²
3 bedroom semi-detached house for sale in St. Annes Drive, Aylestone, Leicester, LE2 — £275,000 • 3 bed • 1 bath • 881 ft²


































































































