Light-filled family living with planning permission to add another bedroom and ensuite.
Three-bedroom Edwardian mid-terrace with period features
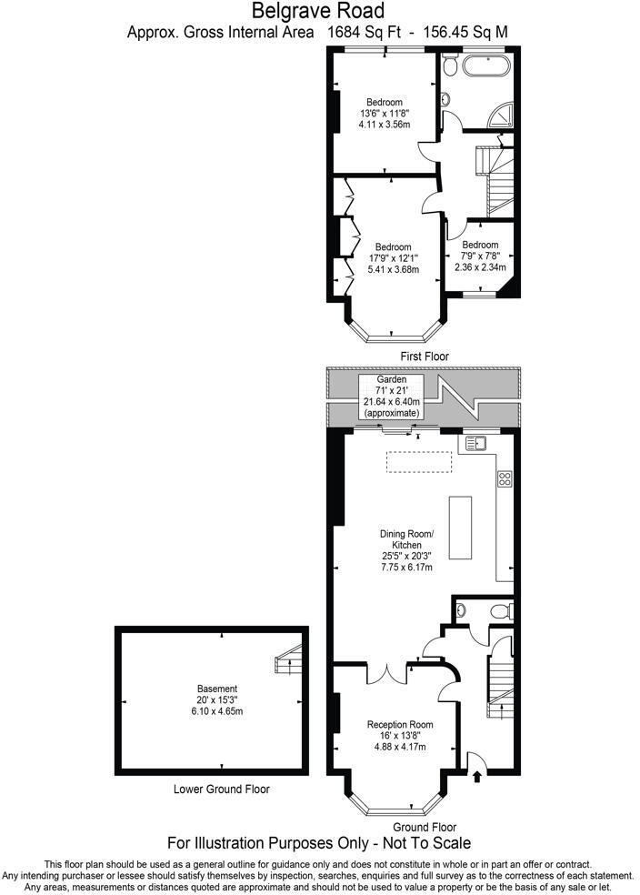
A generously proportioned Edwardian mid-terrace freshly renovated to combine original detail with contemporary living. The brand-new rear extension creates a light-filled open-plan kitchen, dining and family area with bifold doors onto raised decking — a practical hub for family life and entertaining. Off-street parking and a low-maintenance rear garden add everyday convenience.
The house retains period character: bay window, stained glass, high ceilings, carved balustrade, plantation shutters and exposed floorboards throughout the first floor. Three well-proportioned bedrooms upstairs and a modern family bathroom provide comfortable family accommodation now, while approved planning permission for a loft conversion offers straightforward scope to add an extra bedroom and ensuite.
Practical notes: the property is freehold, double-glazed and has mains gas central heating. A cellar offers additional storage but buyers should inspect for any required works. Some building fabric (solid brick walls) is assumed to lack modern cavity insulation, which may be a consideration for future energy upgrades.
Positioned in the sought-after Lakehouse Estate conservation area, the house sits close to Wanstead Flats, good schools (including Aldersbrook Primary) and Central Line stations (Leytonstone c.0.9 miles, Wanstead c.1.1 miles). This makes the house particularly well suited to families seeking ready-to-move-in accommodation with clear potential to extend and increase value.
4 bedroom house for sale in Belgrave Road, Wanstead, E11 — £1,175,000 • 4 bed • 1 bath • 2155 ft²
4 bedroom house for sale in Herongate Road, Aldersbrook, E12 — £1,150,000 • 4 bed • 2 bath • 1644 ft²
3 bedroom terraced house for sale in James Lane, London, E11 — £795,000 • 3 bed • 1 bath • 1395 ft²
3 bedroom terraced house for sale in Empress Avenue, Aldersbrook, E12 — £1,150,000 • 3 bed • 2 bath • 1394 ft²
3 bedroom terraced house for sale in James Lane, London, E11 — £795,000 • 3 bed • 1 bath • 1472 ft²
4 bedroom house for sale in Woodlands Avenue, Wanstead, E11 — £1,350,000 • 4 bed • 2 bath • 1824 ft²






















































































