Spacious master suite with vaulted ceiling and panoramic countryside views.
Architect-designed detached home with abundant character features
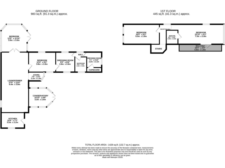
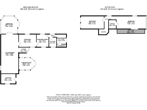
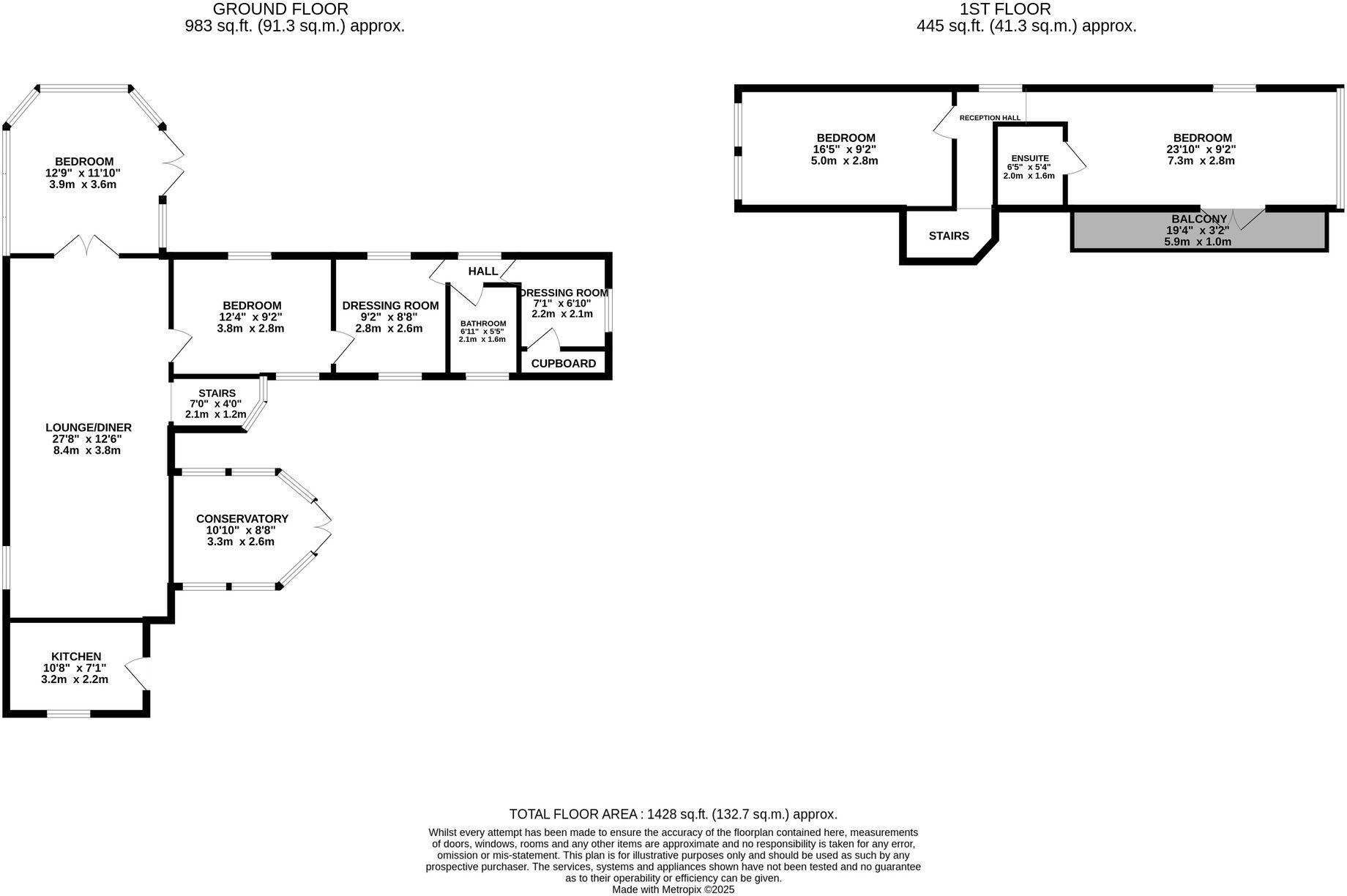
This architect-designed, detached home sits in the centre of St Florence, offering a rare combination of character features and contemporary living. The standout master suite occupies the upper level with a vaulted ceiling, exposed beams, generous dressing and seating areas, an opulent en‑suite and a glass balcony framing long countryside views. The open-plan ground floor links living, dining and conservatory spaces with a log-burning stove and a modern fitted kitchen featuring a Rangemaster — ideal for socialising and entertaining.
Outside, landscaped wrap-around gardens are low maintenance and arranged with multiple seating areas and an elevated summer house that capture sun throughout the day. Practical benefits include a driveway and a double garage — valuable in this village setting. The house is a large, flexible family home with three bedrooms and generous reception space across roughly 1,668 sq ft.
Buyers should note material running costs and potential upgrade work: the EPC is rated F and the property has traditional granite walls likely without insulation, so heating costs and energy efficiency will be a consideration. Council Tax Band E is above average for the area. The property dates from before 1900 and retains period fabric, which may require ongoing upkeep or targeted refurbishment to modernise fully.
St Florence is a popular, picturesque village close to Tenby with local amenities, a school, pubs and good access to coastal paths and countryside. The house will suit buyers seeking a distinctive, spacious home with character and scope to improve efficiency and finish to personal taste.
3 bedroom detached house for sale in St. Florence, Tenby, SA70 — £445,000 • 3 bed • 2 bath • 722 ft²
3 bedroom detached house for sale in 10 Grove Court, St Florence, Tenby, SA70 — £339,950 • 3 bed • 1 bath • 549 ft²
3 bedroom semi-detached house for sale in St. Florence, Tenby, Pembrokeshire, SA70 — £425,000 • 3 bed • 3 bath • 2000 ft²
3 bedroom detached bungalow for sale in Pasko, St. Florence, Tenby, SA70 — £385,000 • 3 bed • 1 bath • 1206 ft²
5 bedroom semi-detached house for sale in St Florence, Tenby, SA70 — £475,000 • 5 bed • 3 bath • 2613 ft²
3 bedroom semi-detached house for sale in St. Florence, Tenby, Pembrokeshire, SA70 — £275,000 • 3 bed • 2 bath • 1390 ft²






































































































































































