Chain-free detached home with conservatory, solar panels and garage conversion potential..
Chain-free detached three-bedroom village house
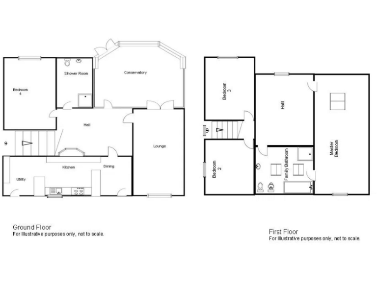
Set in the sought-after village of St Florence and just five minutes’ drive from Tenby, this detached three-bedroom family home blends flexible living with coastal convenience. The large orangery-style conservatory and generous lounge with a log burner provide bright, sociable spaces for family life, while the utility, ground-floor shower room and versatile downstairs room suit multigenerational living or home working.
Practical running costs are helped by solar panels, producing an average return of around £1,800 a year, and underfloor heating in the living areas adds comfort. Off-street parking, a sizeable rear garden and a semi-detached garage give storage and outdoors appeal; the garage has conversion potential subject to planning consent.
Buyers should note notable negatives: the house sits in an area described as very deprived and council tax is expensive. Heating is oil-fired via boiler and radiators, and the cavity walls were built without insulation (assumed), which may mean further energy-efficiency works are needed despite the solar array. The EPC is rated E.
This chain-free property suits a growing family seeking village living near the coast, or buyers looking for sensible renovation and extension potential. Room proportions are generous and internal reconfiguration (landing/master bedroom) could deliver an additional bedroom or home office, increasing long-term value.
3 bedroom detached house for sale in 10 Grove Court, St Florence, Tenby, SA70 — £339,950 • 3 bed • 1 bath • 549 ft²
3 bedroom semi-detached house for sale in Longstone, St Florence, Tenby, SA70 — £235,000 • 3 bed • 1 bath • 1113 ft²
5 bedroom semi-detached house for sale in St. Florence, Tenby, SA70 — £425,000 • 5 bed • 1 bath • 1560 ft²
3 bedroom semi-detached house for sale in The Courtyard, St Florence, SA70 — £250,000 • 3 bed • 2 bath • 952 ft²
3 bedroom detached bungalow for sale in Pasko, St. Florence, Tenby, SA70 — £385,000 • 3 bed • 1 bath • 1206 ft²
3 bedroom detached house for sale in St. Florence, Tenby, SA70 — £575,000 • 3 bed • 2 bath • 1668 ft²


































































































































































































