**Standout Features:**
- Detached Georgian farmhouse set in a tranquil rural location
- Expansive interiors with elegant and spacious living areas
- Mature grounds of 0.83 acres plus an adjacent 1-acre paddock
- Versatile 200+ sq ft workshop, ideal for conversion or storage
- Close proximity to Northumberland National Park
- Easy access to local amenities, excellent transport links, and outdoor activities
**Notable Concerns:**
- Heating provided by electric storage heaters
- Potential for maintenance given the property's age and traditional materials
- Limited insulation in sandstone structure
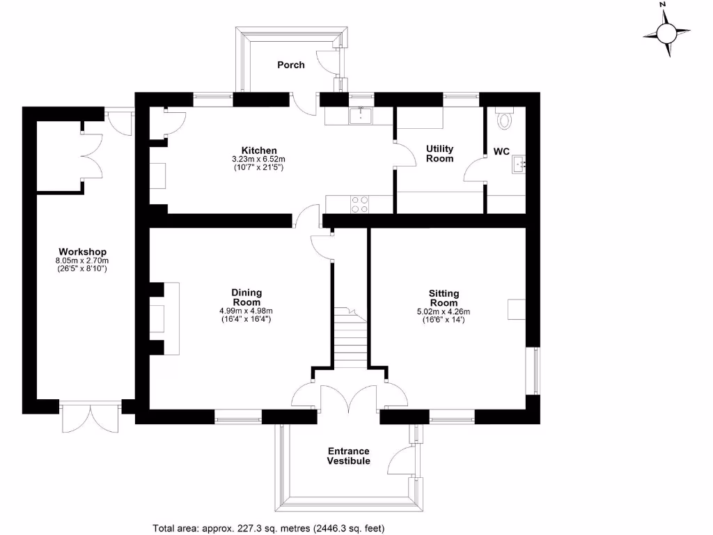
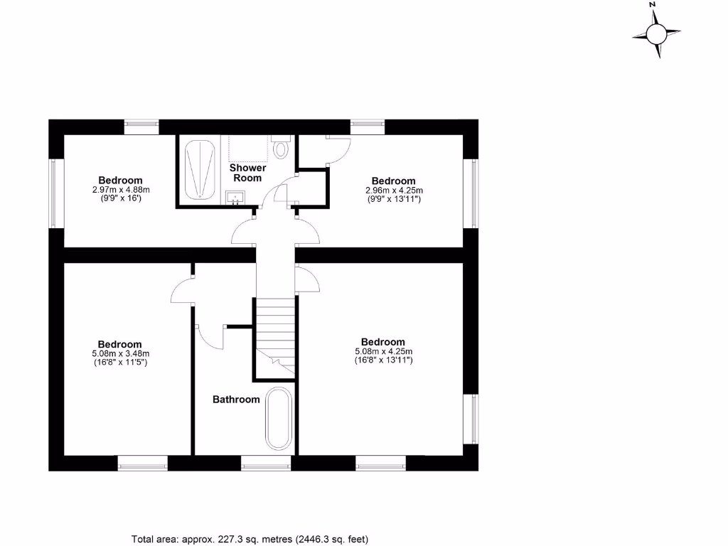
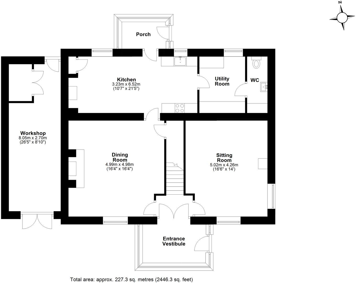
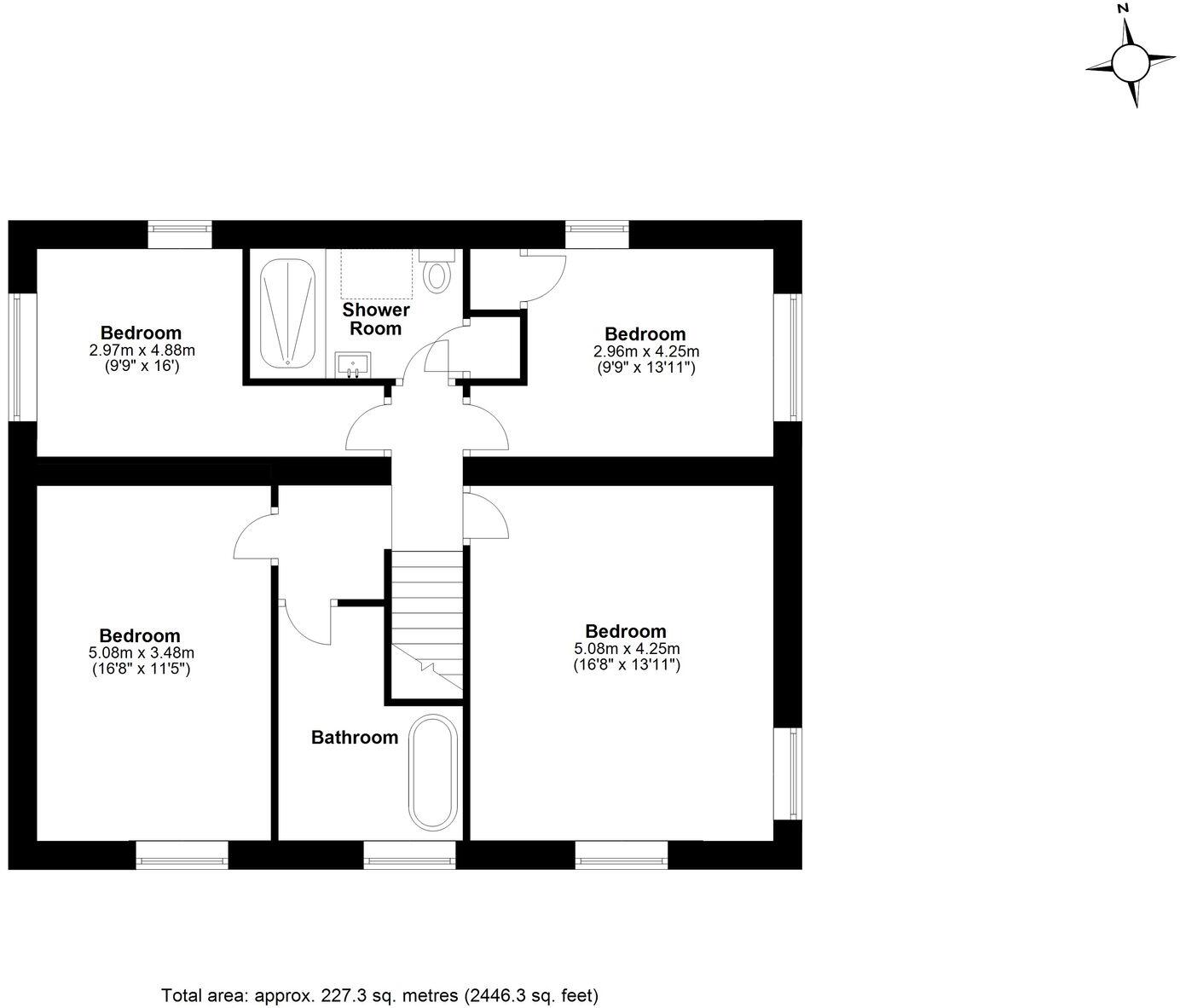
Nestled in the breathtaking Redesdale Valley, this distinguished Georgian farmhouse offers unparalleled privacy and serene countryside charm. With over 2,400 square feet, the property features beautifully restored interiors that blend traditional elegance with modern comfort. Enjoy spacious reception rooms, each boasting inviting features such as exposed beams and a cozy wood-burning stove, as well as a calming kitchen equipped with bespoke cabinetry and underfloor heating.
The extensive grounds encompass lush gardens, a paddock ideal for small livestock, and a woodland area—all presenting exciting possibilities for gardening or even glamping ventures to capitalize on the stunning views, including occasional views of the Northern Lights. The expansive workshop adds further potential for personal projects or storage.
This property is perfect for families looking for comfort and space, or investors seeking a unique property with flexible land use options. With nearby amenities and outdoor recreational opportunities, this charming farmhouse is a rare find that promises a tranquil lifestyle in one of Northumberland's most picturesque locations. Don’t miss the chance to embrace this extraordinary countryside living experience!
4 bedroom detached house for sale in Redshaw - Lot 1, Elsdon, Northumberland, NE19 — £1,200,000 • 4 bed • 3 bath • 3605 ft²
4 bedroom farm house for sale in High Mote, Elsdon, Northumberland, NE19 — £800,000 • 4 bed • 2 bath • 2549 ft²
6 bedroom house for sale in The Farmhouse & Annexe, Earsdon East Forest, Morpeth, Northumberland, NE61 — £900,000 • 6 bed • 3 bath • 2460 ft²
5 bedroom detached house for sale in Thropton, Morpeth, Northumberland, NE65 — £700,000 • 5 bed • 1 bath • 3700 ft²
3 bedroom farm house for sale in Greenhaugh Farm, Greenhaugh, Hexham, Northumberland, NE48 — £1,250,000 • 3 bed • 2 bath • 1955 ft²
3 bedroom detached bungalow for sale in Tarset, Hexham, NE48 — £475,000 • 3 bed • 1 bath • 1860 ft²










































































































