Secluded four-bedroom detached home on a private plot — excellent schools and transport links.
Architect-designed detached home, first time on market
Secluded, very large south-facing landscaped gardens
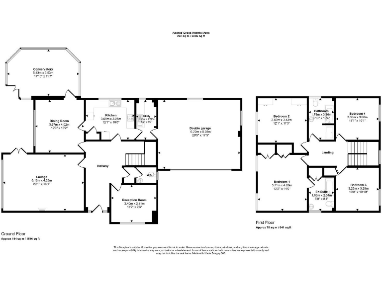
Four double bedrooms; master with en suite and built-in wardrobes
Three reception rooms plus conservatory and dedicated study
Double garage with EV charging point; additional single garage
Short walk to Nunthorpe Primary (Outstanding) and station
Chain free; private driveway with automatic lighting and alarm
Council Tax band F (expensive); buyers should verify services
An architect-designed detached family home, offered for sale for the first time since construction in 1986, set at the end of a long private driveway in sought-after Nunthorpe. The house sits on a very large, secluded plot with south-facing landscaped gardens, specimen trees and a patio accessed directly from the living room—ideal for family life and outdoor entertaining. The property combines bespoke design features with practical family accommodation: four double bedrooms, three reception rooms, a conservatory, utility room and double garage with EV charging point.
Internally the layout is generous and light. Ground-floor spaces include a study overlooking the garden, a large living room with bay window and living-flame gas fire, an adjacent dining room and an Amdega-style conservatory. The kitchen is fitted with integrated Neff appliances, a larder and adjoining utility that links to the garage. Upstairs provides four double bedrooms, a master with en suite and built-in wardrobes, plus a family bathroom with separate shower—suitable for busy households.
Location is a strong selling point: a short walk to Nunthorpe Primary (Outstanding), station, shops and local services, with straightforward access to the A19 and A1 and easy reach of the North York Moors. The house is chain-free and benefits from mains services, fast fibre broadband and low local crime in a very affluent area, making it an appealing long-term family home.
Notable practical points to note: the property is in Council Tax band F (expensive); the particulars advise buyers to verify measurements and the working order of services themselves. The home’s bespoke and dated fitted elements reflect its original 1986 design—buyers seeking fully modernised finishes may want to budget for updating. Overall this is a rare, substantial family property on a private plot with privacy, space and strong transport and school links.
5 bedroom detached house for sale in Marton Moor Road, Nunthorpe, TS7 — £495,000 • 5 bed • 2 bath • 2071 ft²
4 bedroom detached house for sale in Brass Wynd, Nunthorpe, TS7 — £480,000 • 4 bed • 3 bath • 2820 ft²
4 bedroom detached house for sale in Clarence Road, Nunthorpe, TS7 — £565,000 • 4 bed • 2 bath • 2411 ft²
5 bedroom detached house for sale in Rush Gardens, Nunthorpe, TS7 — £420,000 • 5 bed • 2 bath • 2264 ft²
4 bedroom detached house for sale in Nunthorpe Gardens, Nunthorpe, TS7 — £600,000 • 4 bed • 3 bath • 2486 ft²
4 bedroom semi-detached house for sale in Guisborough Road, Nunthorpe, TS7 — £775,000 • 4 bed • 3 bath • 3403 ft²










































































































